Appartamento in vendita - 1227 Les Acacias
Perché amerai questa proprietà
Alti soffitti e stanze spaziose
Balcone con vista montagne
Vicino ai mezzi pubblici
Organizza una visita
Prenota una visita con Pascale oggi!
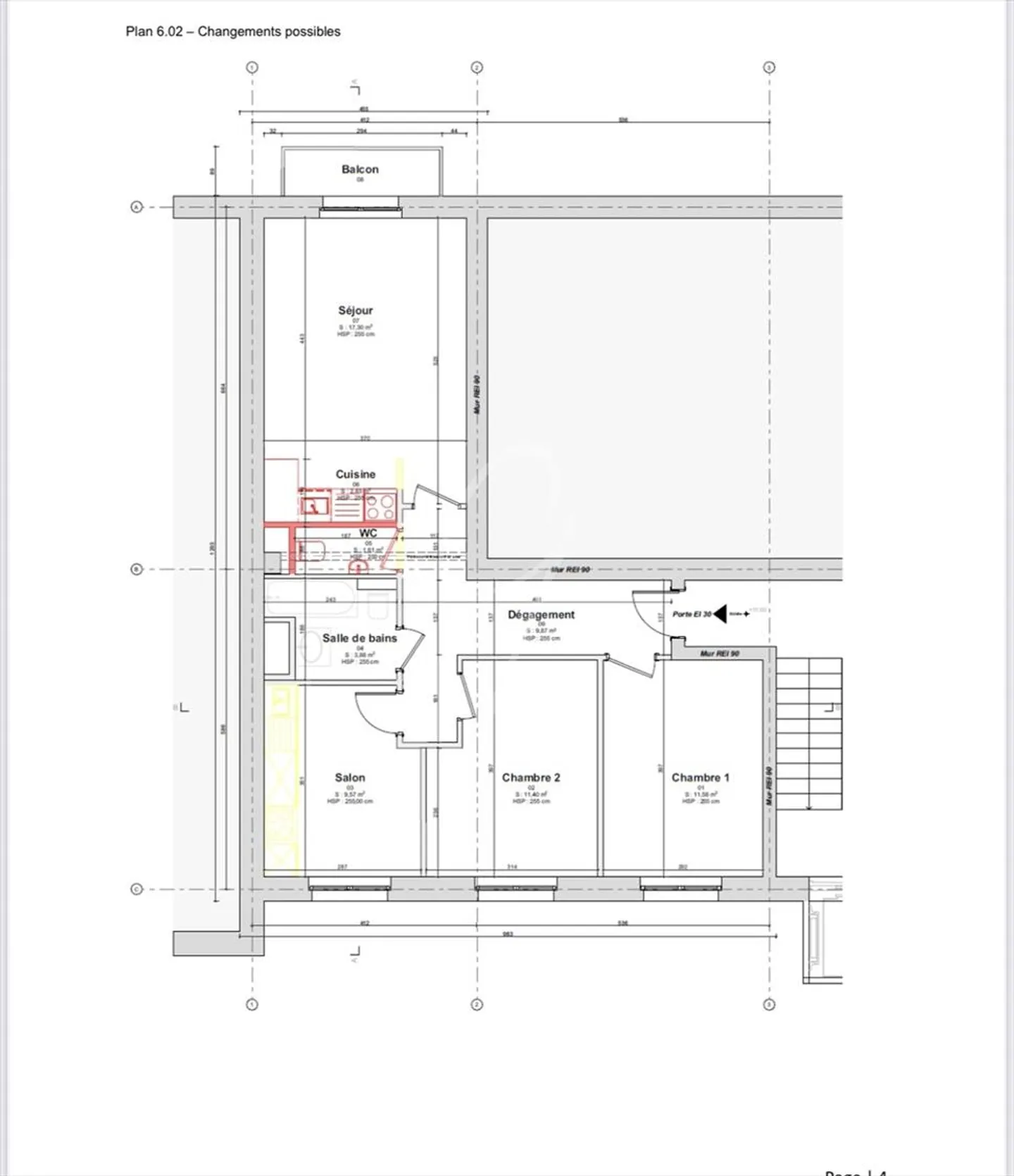
Appartamento 4 locali
Bellissimo appartamento attraversante
Questo appartamento di 4 stanze, attraversante, unisce il fascino di un edificio antico con i suoi volumi generosi e i soffitti alti a servizi moderni in un quartiere vivace e ricercato di Ginevra.
È stato ristrutturato nel 2010 e si trova al 4° piano di un edificio molto ben mantenuto degli anni '10.
Questo appartamento può beneficiare dell'agevolazione fiscale CASATAX (i costi delle tasse di registrazione e della creazione di certificati ipotecari sono rid...
Dettagli immobile
- Disponibile dal
- Su accordo
- Stanze
- 4
- Bagni
- 1




