1 / 12

Appartamento in affitto - 1225 Chêne-Bourg

4 rooms • 97 m² • 2° piano
CHF 1’395’000.-
CHF 14’381 m²

Perché amerai questa proprietà

Ampio terrazzo di 30 m²

Design contemporaneo di alta gamma

Ambiente tranquillo in un parco

Organizza una visita

Prenota una visita con Eric oggi!

Eric FINO
COMPTOIR IMMOBILIER SA
Questa descrizione è stata tradotta automaticamente da Francese.

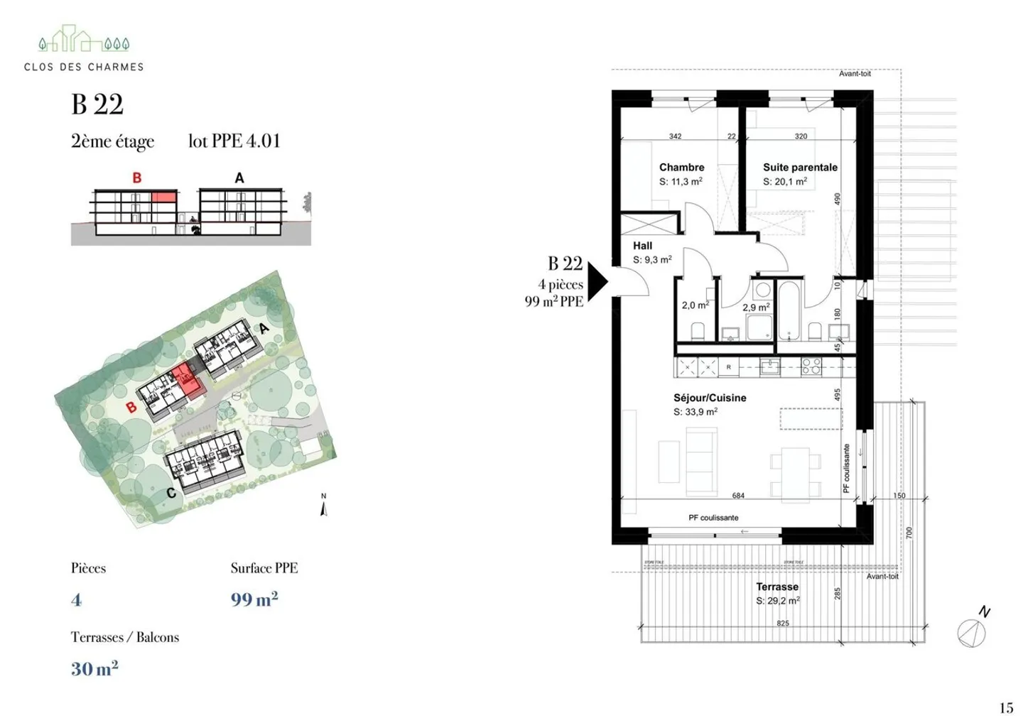
Promozione le clos des charmes | 4 stanze b22

Questo splendido appartamento di 4 stanze si trova al secondo piano dell'edificio B della residenza le CLOS DES CHARMES.

Offre volumi generosi e luminosi per una superficie PPE di 99 m² e una terrazza di 30 m².

Un posto auto in garage e una cantina completano questo splendido oggetto.

LE CLOS DES CHARMES è un progetto innovativo e audace, situato in assoluta tranquillità in un parco di 8.000 m². Con un'architettura decisamente contemporanea, questa residenza è composta da tre edifici perfettamen...

Dettagli immobile

Disponibile dal
Su accordo
Stanze
4
Superficie abitabile
97
Piano

Caratteristiche

Parcheggio

Agenzia

COMPTOIR IMMOBILIER SA
Indirizzo:cours de Rive 7, 1204, Genève
Eric FINO
Ref: CdC_B22.86159467

Località

1225 Chêne-Bourg

Fonti