Duplex in vendita - 1207 Genève
Perché amerai questa proprietà
Ampia terrazza privata di 31 m²
Design moderno e chic
Posizione tranquilla e pedonale
Organizza una visita
Prenota una visita con Michel oggi!
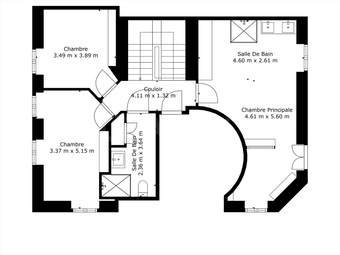
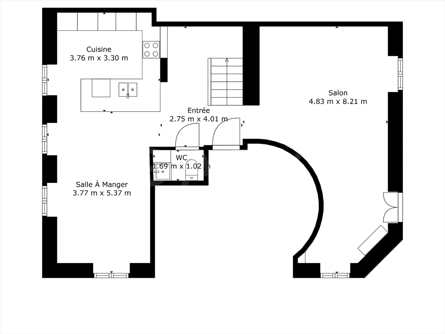
Duplex 5 stanze
Magnifico appartamento di prestigio con terrazza
Nel cuore della città di Ginevra, in uno dei quartieri più ricercati, all'interno di una residenza di carattere con ascensore, magnifico appartamento duplex di 5 locali con una superficie PPE di 195 m², prolungato all'esterno da due balconi di 8 m2 ciascuno e una splendida terrazza di 31 m2, che offre belle prospettive per le serate estive.
Sebbene si trovi in uno dei quartieri più ricercati e alla moda di Ginevra, in prossimità immediata di tutti...
Dettagli immobile
- Disponibile dal
- Su accordo
- Stanze
- 5
- Bagni
- 2
- Superficie abitabile
- 195 m²




