Appartamento in vendita - 1206 Genève
Perché amerai questa proprietà
Luminoso con vista parco
Cucina Bulthaup di alta gamma
Vicino a scuole e trasporti
Organizza una visita
Prenota una visita con Guive oggi!
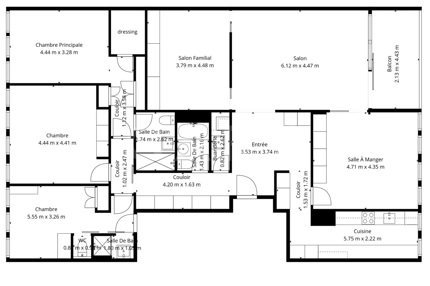
Disponibile a breve - CHAMPEL - Appartamento familiare con 7 stanze
Appartamento di passaggio di 187 m², tranquillo, luminoso, con vista sul parco, due saloni, cucina Bulthaup e loggia di 10 m².
Tre camere da letto, di cui due en suite, arredamento di alta qualità e due posti auto sotterranei.
Vicino a scuole e mezzi di trasporto, proprietà rara a Champel.
Dettagli immobile
- Disponibile dal
- Su accordo
- Stanze
- 7
- Anno di costruzione
- 1965
- Superficie abitabile
- 187 m²
- Piano
- 2°
- Piani dell'edificio
- 7



