Attico in vendita - Talgutweg 11, 3063 Ittigen
Perché amerai questa proprietà
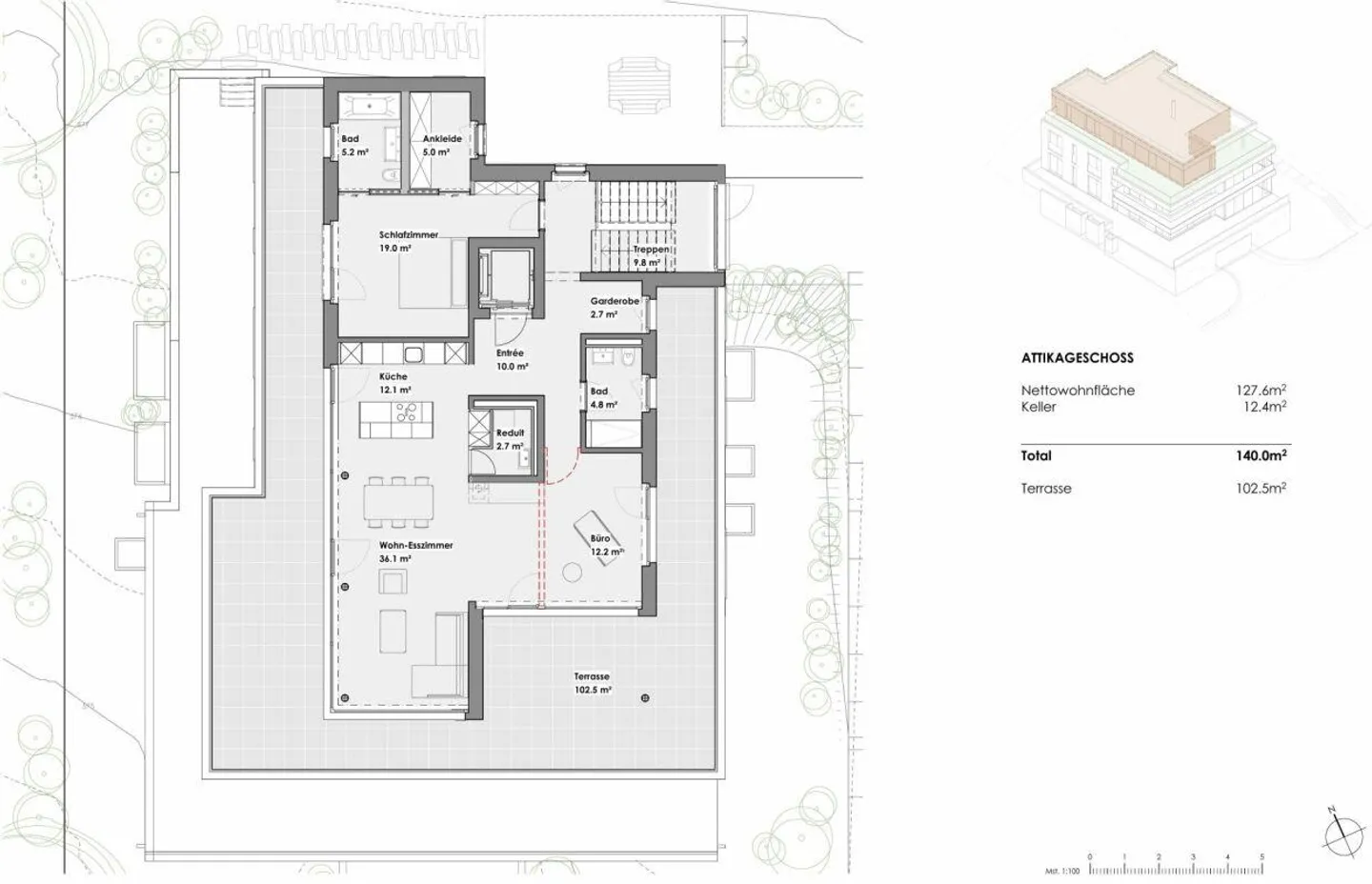
Terrazza spaziosa di 102 m²
Camere luminose con grandi finestre
Soluzioni energetiche sostenibili
Organizza una visita
Prenota una visita con Reto oggi!
Vivere esclusivo con vista sulle montagne a ittigen
In una posizione privilegiata a Ittigen, sta nascendo la tua nuova casa. Su un lotto di 881 m², verrà realizzato un moderno edificio plurifamiliare con tre appartamenti di alta qualità e un garage con 6 posti auto.
Gli appartamenti sono facilmente accessibili con accesso diretto tramite ascensore. I lavori sono già iniziati e l'occupazione è prevista per l'inizio dell'estate 2026.
Punti salienti dell'appartamento attico
- Superficie abitabile netta di 127 m²
- Soggiorno e sala da pranzo aperti con c...
Dettagli immobile
- Disponibile dal
- Su accordo
- Stanze
- 3.5
- Anno di costruzione
- 2024
- Superficie abitabile
- 127 m²
- Piano
- 2°



