Appartamento in vendita - Route Des Jurets 11, 1244 Choulex
Perché amerai questa proprietà
Architettura di villaggio classica
Ampio giardino condiviso
Ottimo accesso ai trasporti pubblici
Organizza una visita
Prenota una visita con Jean-Louis oggi!
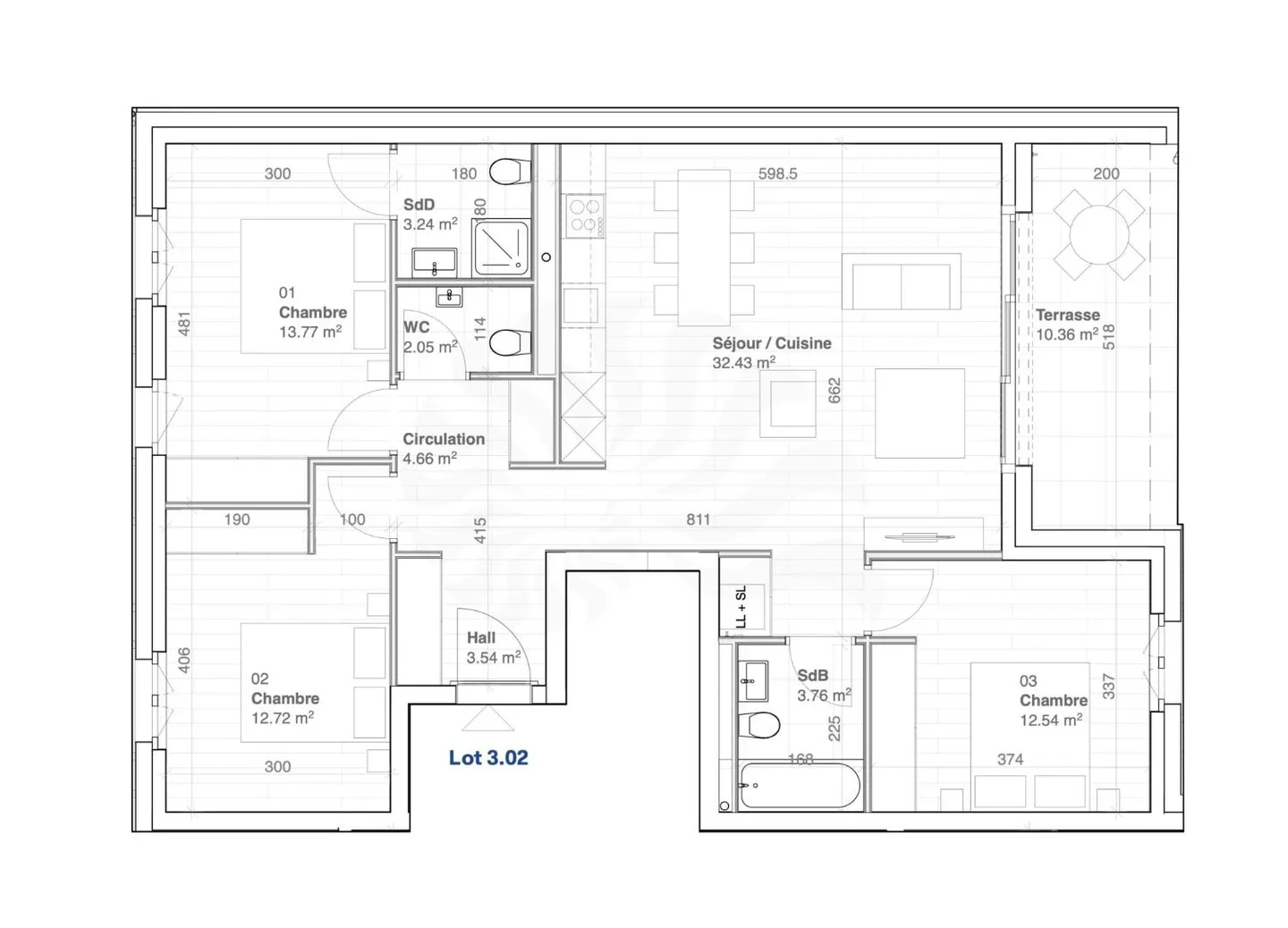
Appartamento 5P al 1° piano, 11, route des Jurêts a Choulex
Promozione: 11, route des Jurêts a Choulex
Nel centro del villaggio di Choulex, di fronte alla zona agricola, questo edificio di architettura classica offre 6 appartamenti in PPE e 11 posti auto nel seminterrato.
Il villaggio di Choulex è molto ben collegato dai mezzi pubblici, con un viaggio in autobus fino a Rive che dura 20 minuti. La scuola primaria dista 5 minuti a piedi e i negozi sono raggiungibili in 10 minuti in auto o in autobus, a Belle-Terre.
Choulex offre bellissime passeggiate, un ...
Dettagli immobile
- Disponibile dal
- 30.03.2028
- Stanze
- 5
- Anno di costruzione
- 2026
- Superficie abitabile
- 113 m²
- Piano
- 1°
- Piani dell'edificio
- 2



