Appartamento in vendita - 1026 Echandens
Perché amerai questa proprietà
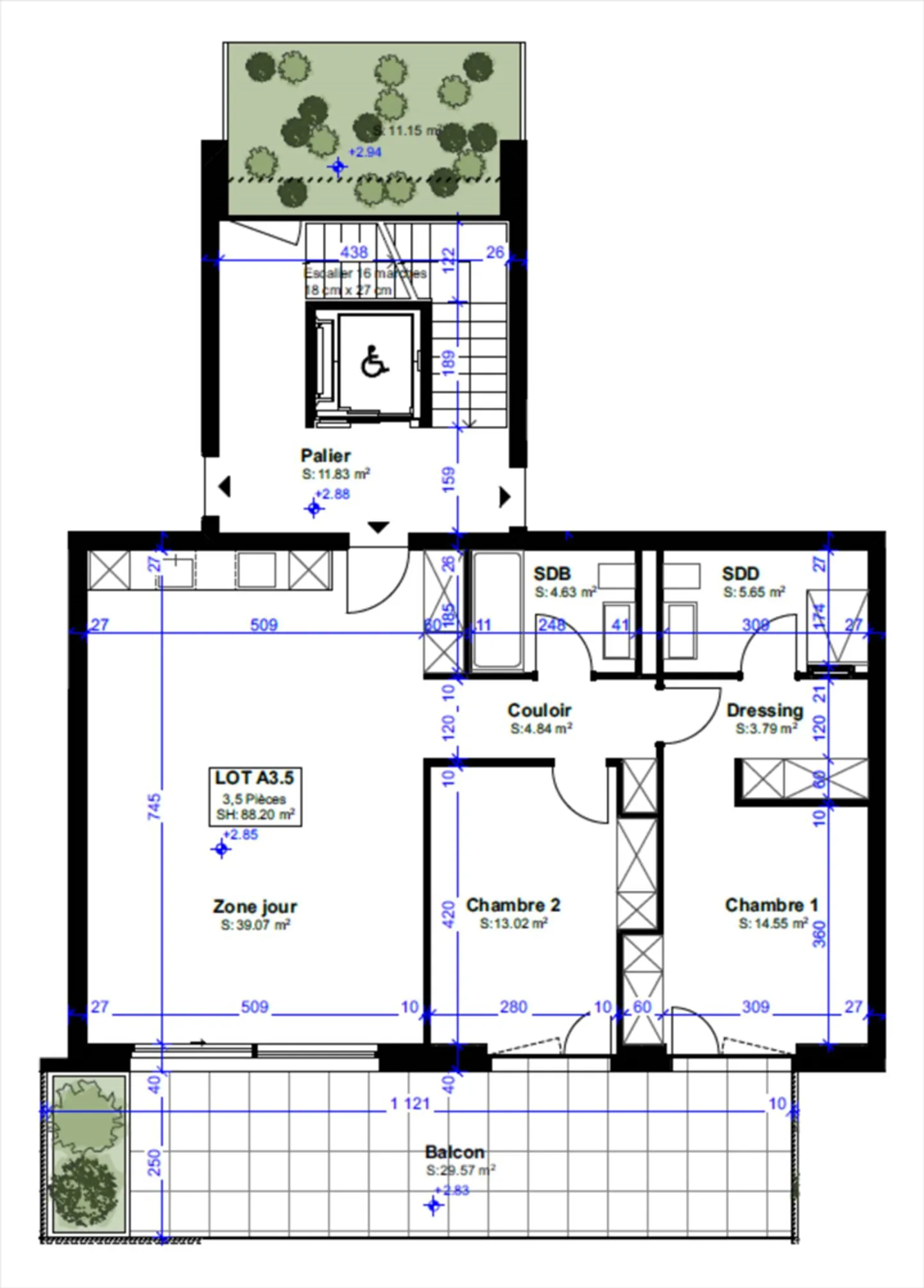
Terrazza privata di 30 m²
Immerso in un parco di 1,5 ha
Caratteristiche ecologiche incluse
Organizza una visita
Prenota una visita oggi!
Nuova promozione: appartamento di 3,5 locali con terrazza di 30 m2
Posizione ideale: Situato tra Losanna e Morges, il pittoresco villaggio di Échandens offre un ambiente di vita tranquillo con tutti i vantaggi, mescolando campagna e prossimità urbana: accesso rapido all'EPFL, ai mezzi pubblici, all'autostrada, nonché a scuole, negozi, ristoranti e medici.
Gli autobus 702 e 705 ti portano a Bussigny, Morges e all'EPFL. Le scuole primarie sono nel villaggio e le scuole secondarie a Lonay.
Un ambiente verde unico:
La residenza, immersa nel cuore di un magnifico pa...
Dettagli immobile
- Disponibile dal
- 31.03.2026
- Stanze
- 3.5
- Anno di costruzione
- 2025
- Superficie abitabile
- 88 m²
- Superficie utilizzabile
- 103 m²
- Piano
- 1°



