Appartamento in vendita - 1026 Denges
Perché amerai questa proprietà
Fascino di un edificio storico
Cucina aperta moderna
Ampio balcone di 19m2
Organizza una visita
Prenota una visita con Joëlle oggi!
A 8' da Morges, nel caratteristico villaggio di Denges, trasformazione di un edificio esistente che comprenderà 7 unità. VISITE ANCHE NEL FINE SETTIMANA
PERMESSO IN VIGORE
Sarai affascinato da questa magnifica promozione in un edificio risalente al 1800 circa. Un matrimonio tra antico e moderno, travi a vista
Inizio dei lavori: ultimo trimestre 2025
Vendita a termine con fondi propri versati dal notaio
1° piano :
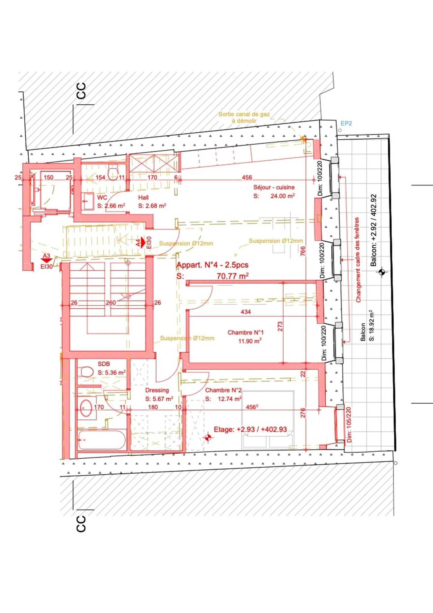
Appartamento 3.5 locali di 82m2 netti e 92m2 ponderati - lotto 4:
Ingresso con arma...
Dettagli immobile
- Disponibile dal
- Su accordo
- Stanze
- 3.5
- Anno di ristrutturazione
- 2025
- Piano
- 1°
- Piani dell'edificio
- 2



