Appartamento in vendita - 1012 Lausanne
Perché amerai questa proprietà
Design architettonico moderno
Balconi per vivere all'aperto
Zona tranquilla, vicino alla natura
Organizza una visita
Prenota una visita oggi!
Nuova promozione a chailly - elegante 4.5 stanze
Nuova promozione in esclusiva a Chailly - Losanna
Situata nel quartiere molto ricercato di Chailly, questa nuova realizzazione si distingue per la sua eleganza, la sua tranquillità e la sua posizione eccezionale.
La promozione propone solo dieci appartamenti distribuiti su tre residenze di prestigio, da 2.5 a 5.5 stanze, tutti progettati per offrire comfort, luminosità e generosità degli spazi.
Un ambiente di vita privilegiato:
A ridosso della natura, lontano da ogni disturbo, questo indirizzo c...
Dettagli immobile
- Disponibile dal
- 31.08.2027
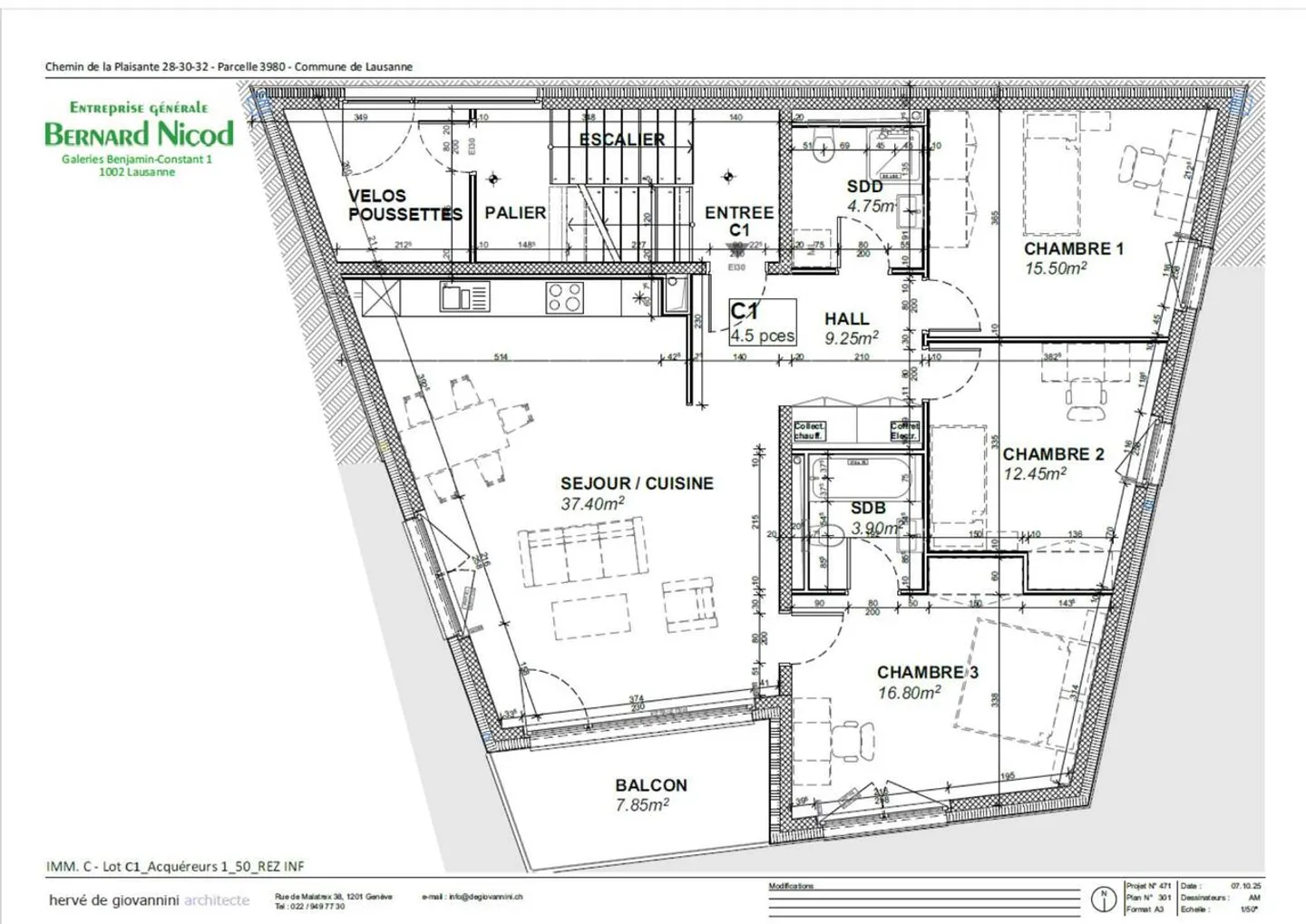
- Stanze
- 4.5
- Anno di costruzione
- 2025
- Superficie abitabile
- 104 m²
- Superficie utilizzabile
- 108 m²
- Piano
- Terra



