Appartamento in vendita - 1012 Lausanne
Perché amerai questa proprietà
Spazio abitativo luminoso con terrazza
Finiture moderne personalizzabili
Sistema di riscaldamento ecologico
Organizza una visita
Prenota una visita con LOMBARDI oggi!
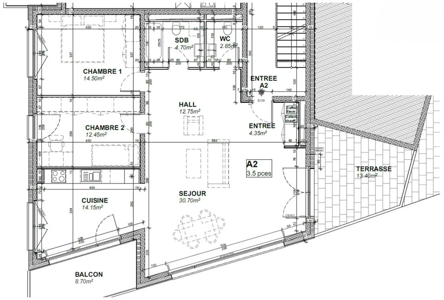
Situato al piano superiore del edificio A, questo splendido appartamento 3.5 locali di 99.50 m² si distingue per il suo spazio abitativo luminoso e la sua disposizione funzionale. Il soggiorno di 30 m² si apre su una terrazza di 13 m², esposta a sud, che offre un bel spazio esterno per godere della tranquillità e della natura circostante.
La cucina semi-aperta di 14 m² crea un'atmosfera conviviale mantenendo la fluidità dello spazio, mentre le finiture personalizzabili consentono di progettare u...
Dettagli immobile
- Disponibile dal
- Su accordo
- Stanze
- 3.5
- Parcheggio esterni
- 1
- Superficie abitabile
- 109 m²
- Piano
- Terra



