Appartamento in vendita - 1000 Lausanne 25
4.5 stanze • 155 m² • Piano terra
CHF 1’820’000
CHF 10’643 m²
Perché amerai questa proprietà
Terrazza privata di 40 m²
Ampio spazio giardino
2 posti auto interni
Organizza una visita
Prenota una visita con Festa oggi!
Festa Carlo
Régie Duboux SA | Lausanne
Questa descrizione è stata tradotta automaticamente da Tedesco.
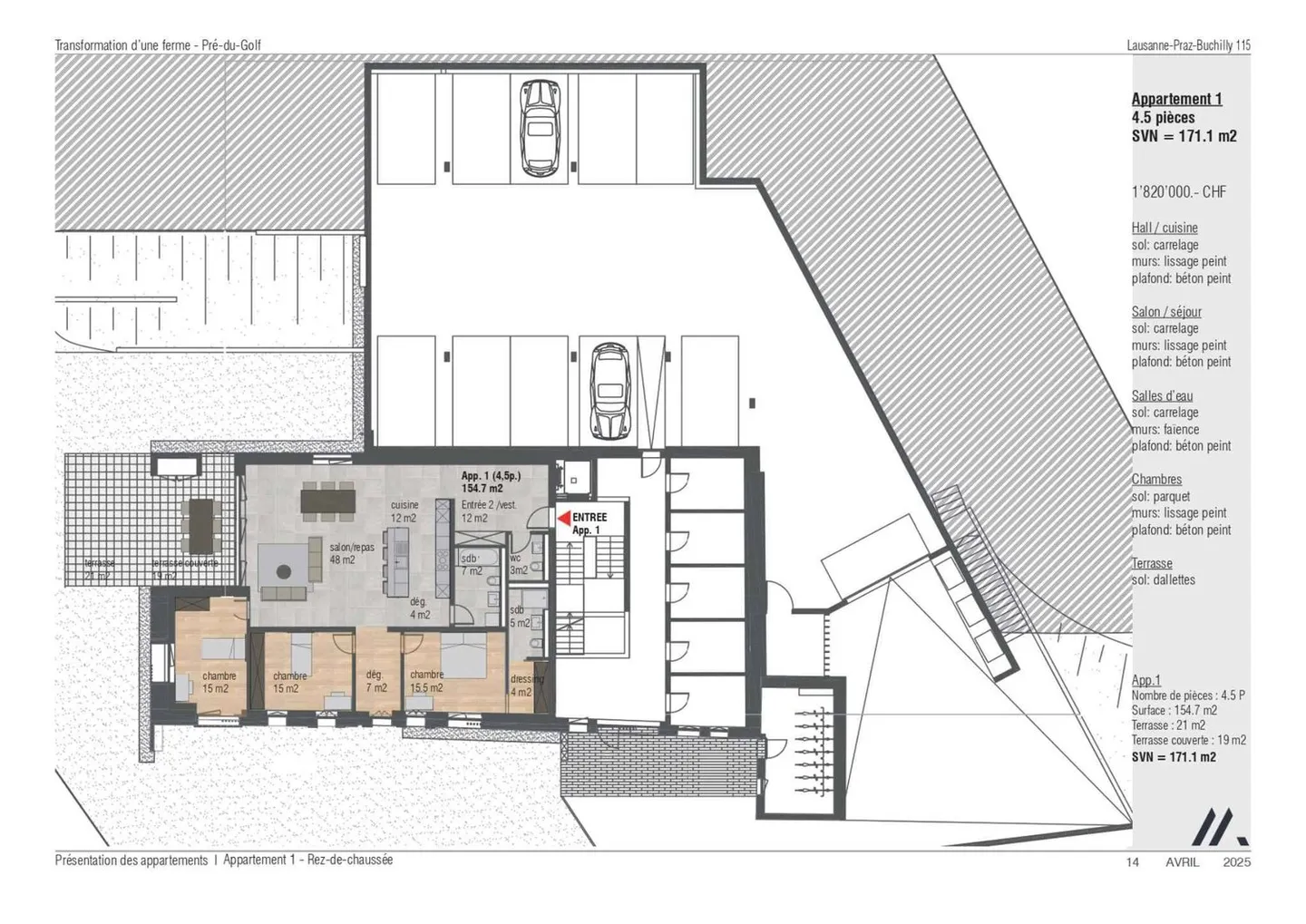
Appartamento 4.5 stanze a losanna
Questo appartamento di 4.5 stanze di 155 m2 si trova al piano terra, offre una bella terrazza di 40 m2 e un grande giardino.
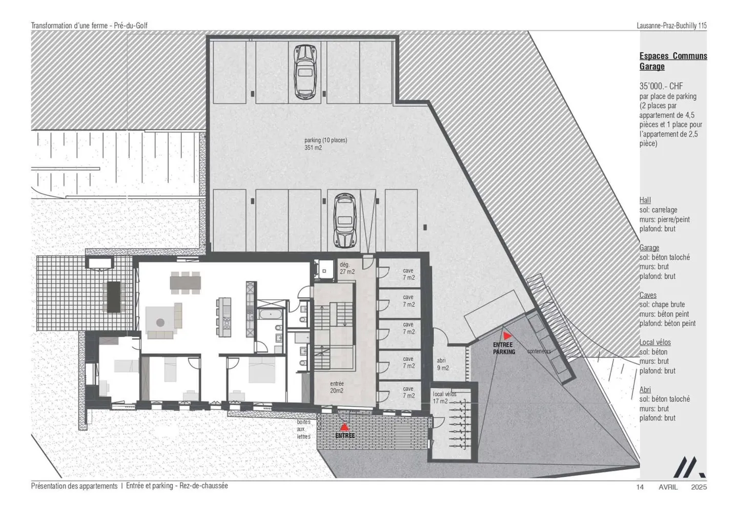
2 posti auto interni completano questa proprietà.
Prezzo dell'appartamento: CHF 1'820'000.-
2 posti auto: CHF 70'000.-
Prezzo totale: 1'890'000.-
Dettagli immobile
- Disponibile dal
- 30.06.2026
- Stanze
- 4.5
- Superficie abitabile
- 155 m²
- Superficie utilizzabile
- 171 m²
- Piano
- Terra
- Piani dell'edificio
- 4
Caratteristiche
Parcheggio
Nuova costruzione
Agenzia
Régie Duboux SA | Lausanne
Indirizzo:Rue du Petit-Chêne 26, 1003, Lausanne
(3 reviews)
Ref: 61320-1074754
Online da
01/10/2025
un mese fa
Località
1000 Lausanne 25




