Appartamento in vendita - Pardi 10, 7083 Lantsch/Lenz
Perché amerai questa proprietà
Vista mozzafiato sulle montagne
Terrazza privata per relax
Efficienza energetica Minergie
Organizza una visita
Prenota una visita con Haid oggi!
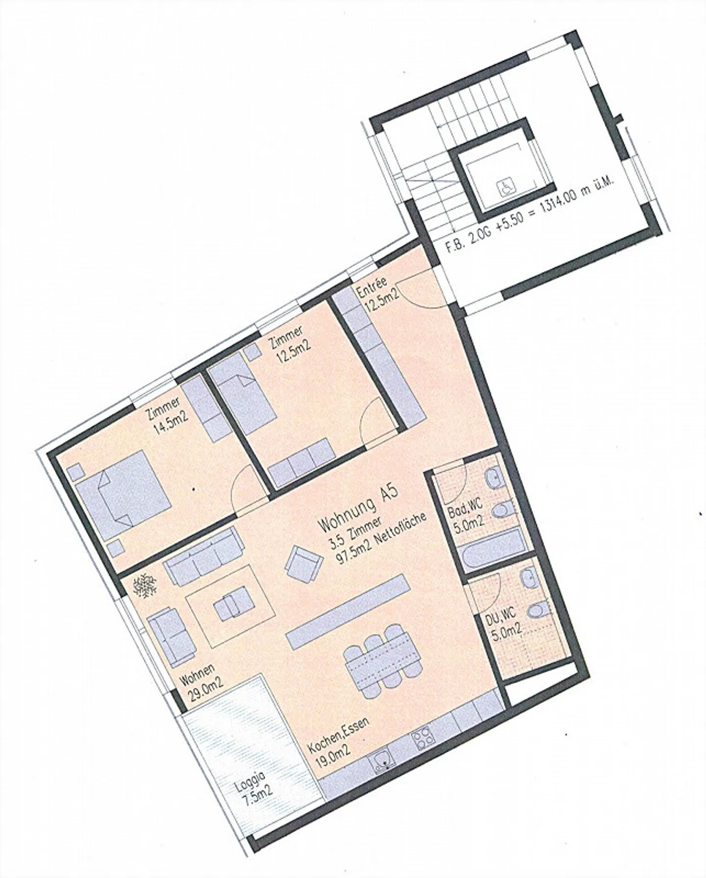
Moderno appartamento di 3,5 stanze con vista sulle montagne a lantsch/lenz
Scopri questo bellissimo appartamento di 3,5 stanze al 2° piano di un edificio Minergie ben tenuto del 2008 nella idilliaca municipalità di Lantsch/Lenz. Con 97 m2 di superficie abitabile, questo appartamento accessibile ai disabili offre comfort moderno nel mezzo dell'impressionante paesaggio montano dei Grigioni.
L'appartamento si distingue per:
- Ampio soggiorno: Zona pranzo luminosa con pavimento in parquet e grandi porte in vetro che conducono alla terrazza/loggia privata.
- Vista montagna moz...
Dettagli immobile
- Disponibile dal
- Su accordo
- Stanze
- 3.5
- Anno di costruzione
- 2008
- Superficie abitabile
- 97 m²
- Piano
- 2°
- Piani dell'edificio
- 3



