

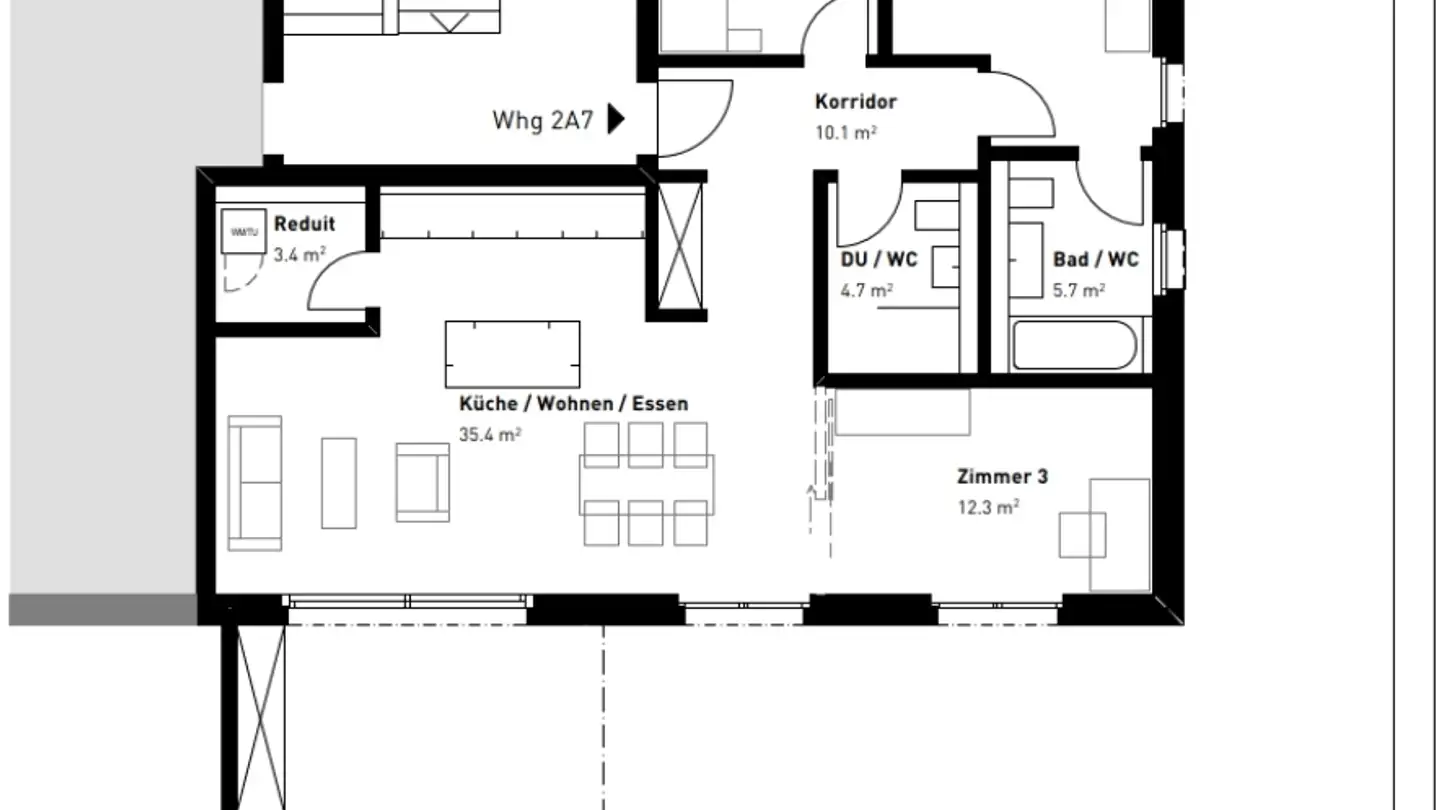
Sfoglia tutti gli annunci di appartamenti di 4 locali in vendita a Ernetschwil (8725)

Il prezzo medio di un quadrilocale attualmente in vendita è di CHF 915’954. Il prezzo di vendita dell' 80% degli alloggi sul mercato è compreso tra CHF 507’591 e CHF 1’590’197. Il prezzo medio al mq a Ernetschwil (8725) è di CHF 7’668.