

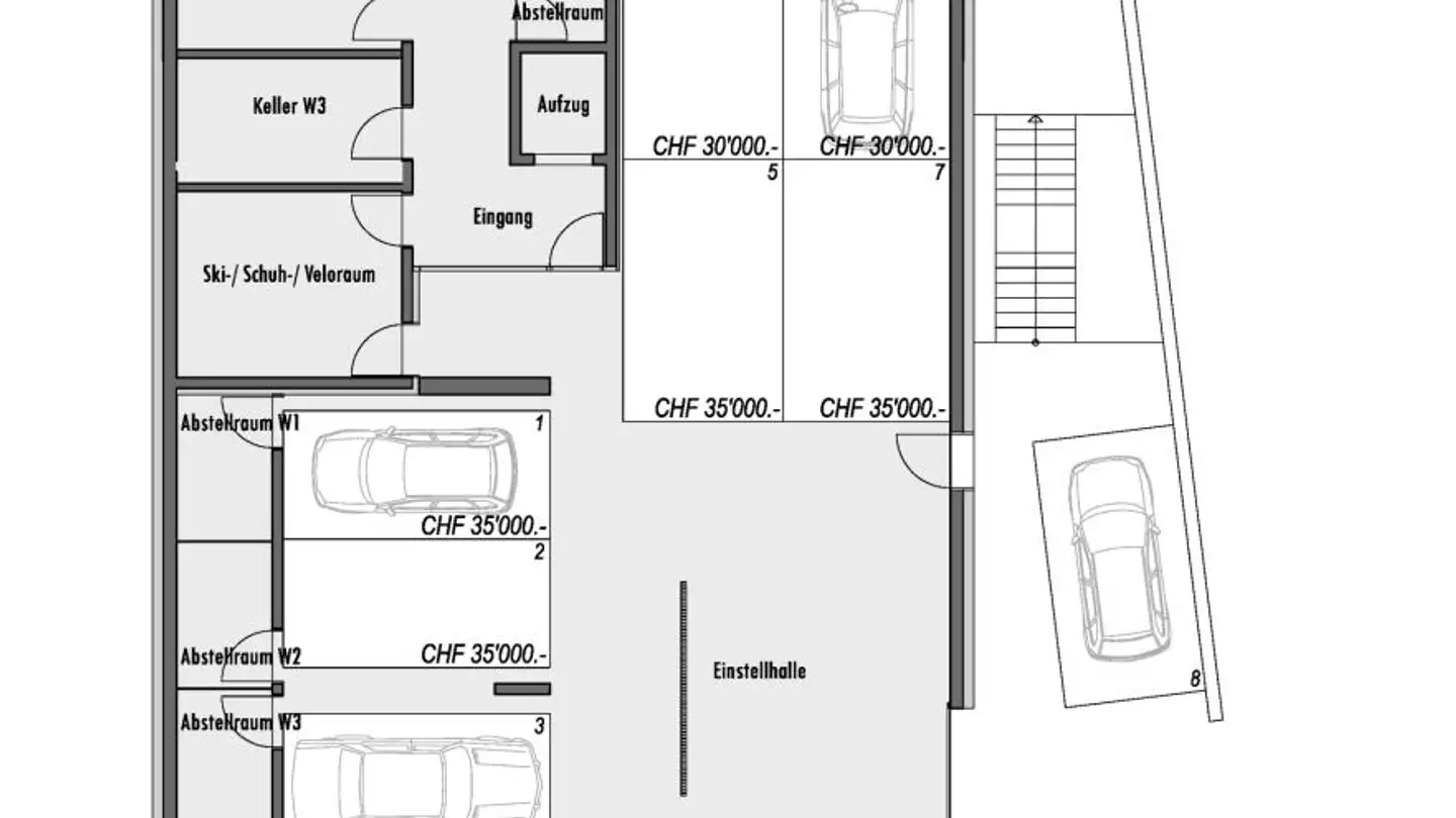
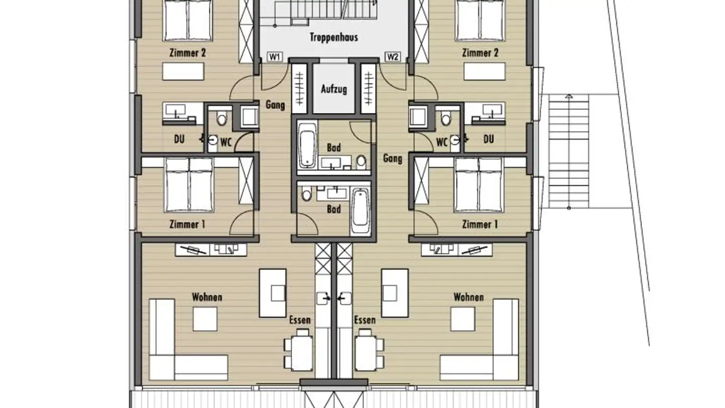
Sfoglia tutti gli annunci di appartamenti di 3 locali in vendita a Vnà (7557)

Il prezzo medio di un trilocale attualmente in vendita è di CHF 862’343. Il prezzo di vendita dell' 80% degli alloggi sul mercato è compreso tra CHF 366’631 e CHF 2’104’334. Il prezzo medio al mq a Vnà (7557) è di CHF 6’094.