Ristorante in affitto - Rue De L'industrie, 1950 Sion
Perché amerai questa proprietà
Cucina completamente attrezzata
35 posti interni
Ampio parcheggio disponibile
Organizza una visita
Prenota una visita oggi!
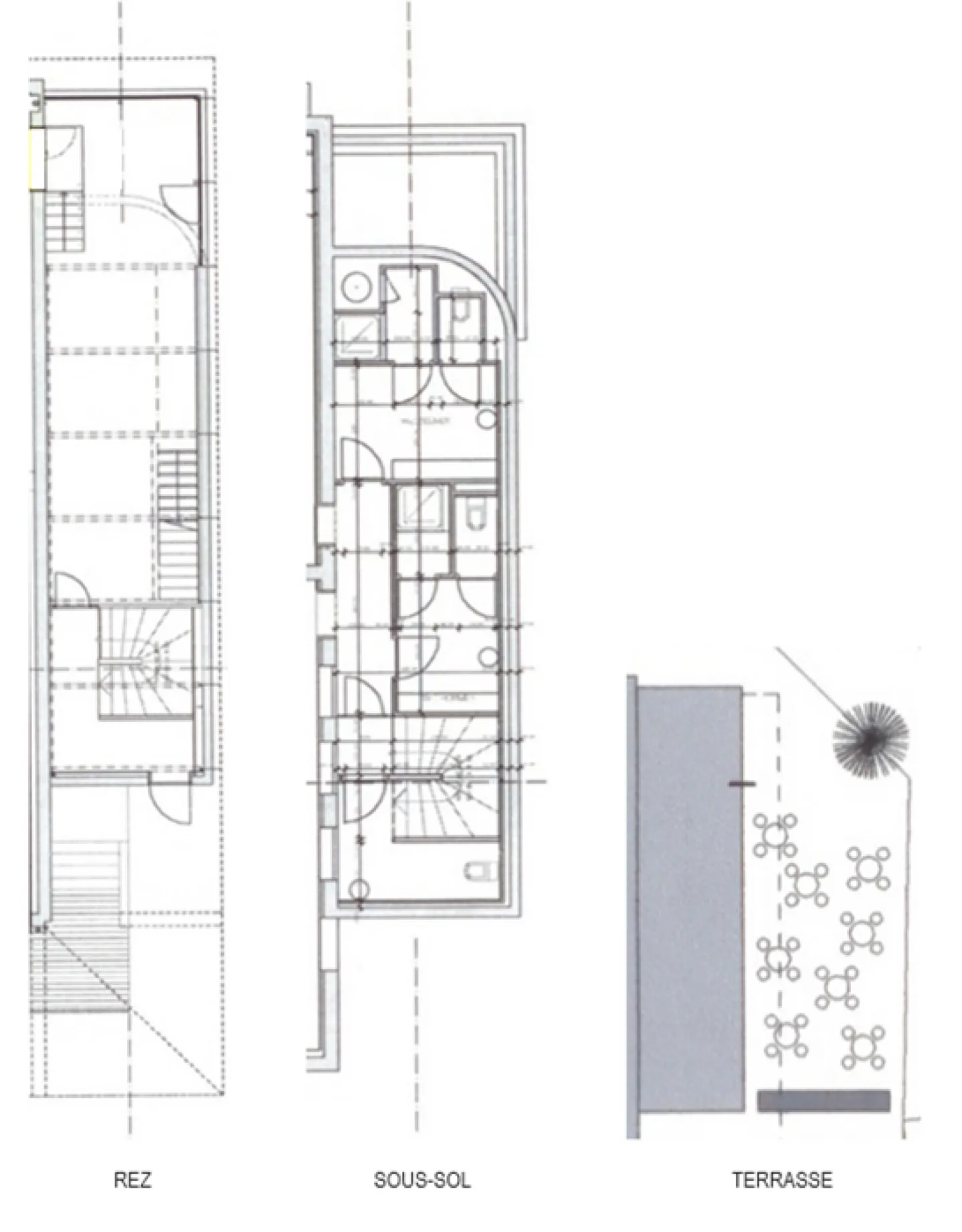
DA AFFITTARE PER RISTORANTE O COMMERCIO
Ristorante situato a Sion vicino alla zona industriale, in un quartiere ad alta densità di popolazione, che beneficia di diversi posti auto per i clienti, disposizione di sedie e tavoli, tutte le macchine sono funzionanti, la cucina è completamente attrezzata e i locali sono climatizzati.
Oggetto: Ristorante o Commercio
Superficie: 75 m2 per ristorante e 20 m2 per deposito
Numero di posti: 35 posti all'interno e 25 posti in terrazza
Posti auto: Disponibili
Per le visite, si prega di contattare Alain ...
Ripartizione dei costi
- Affitto netto
- CHF 2’250
- Costi aggiuntivi
- CHF 300
- Totale delle locazioni
- CHF 2’250
Dettagli immobile
- Disponibile dal
- Su accordo
- Superficie abitabile
- 95 m²
- Superficie utilizzabile
- 95 m²



