Ristorante in affitto - Stimmerstrasse 76, 8200 Schaffhausen
Perché amerai questa proprietà
Posizione privilegiata vicino al cimitero
Alto afflusso dal centro fitness
Parcheggio disponibile in loco
Organizza una visita
Prenota una visita con Klotz oggi!
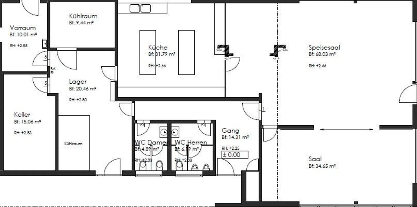
Spazio ristorante per ristoratori esperti - La tua occasione!
Un ristorante è disponibile per l'affitto in una posizione eccellente.
Proprio di fronte si trova il Waldfriedhof - condizioni ideali per i gruppi di lutto. Inoltre, un centro fitness nella stessa proprietà garantisce un costante afflusso di persone e potenziali clienti.
Perfettamente adatto per ristoratori esperti con un concetto e impegno.
- Parcheggio disponibile
- Fermata dell'autobus nelle immediate vicinanze
Se siete interessati, attendiamo il vostro contatto.
Dettagli immobile
- Disponibile dal
- Su accordo
- Anno di costruzione
- 1968
- Anno di ristrutturazione
- 1988



