Ristorante in affitto - Rue De L'industrie 54, 1950 Sion
Perché amerai questa proprietà
Cucina completamente attrezzata
35 posti interni
Terrazza con 25 posti
Organizza una visita
Prenota una visita oggi!
Ristorante
DA AFFITTARE PER RISTORANTE O NEGOZIO
DA AFFITTARE PER RISTORANTE O NEGOZIO
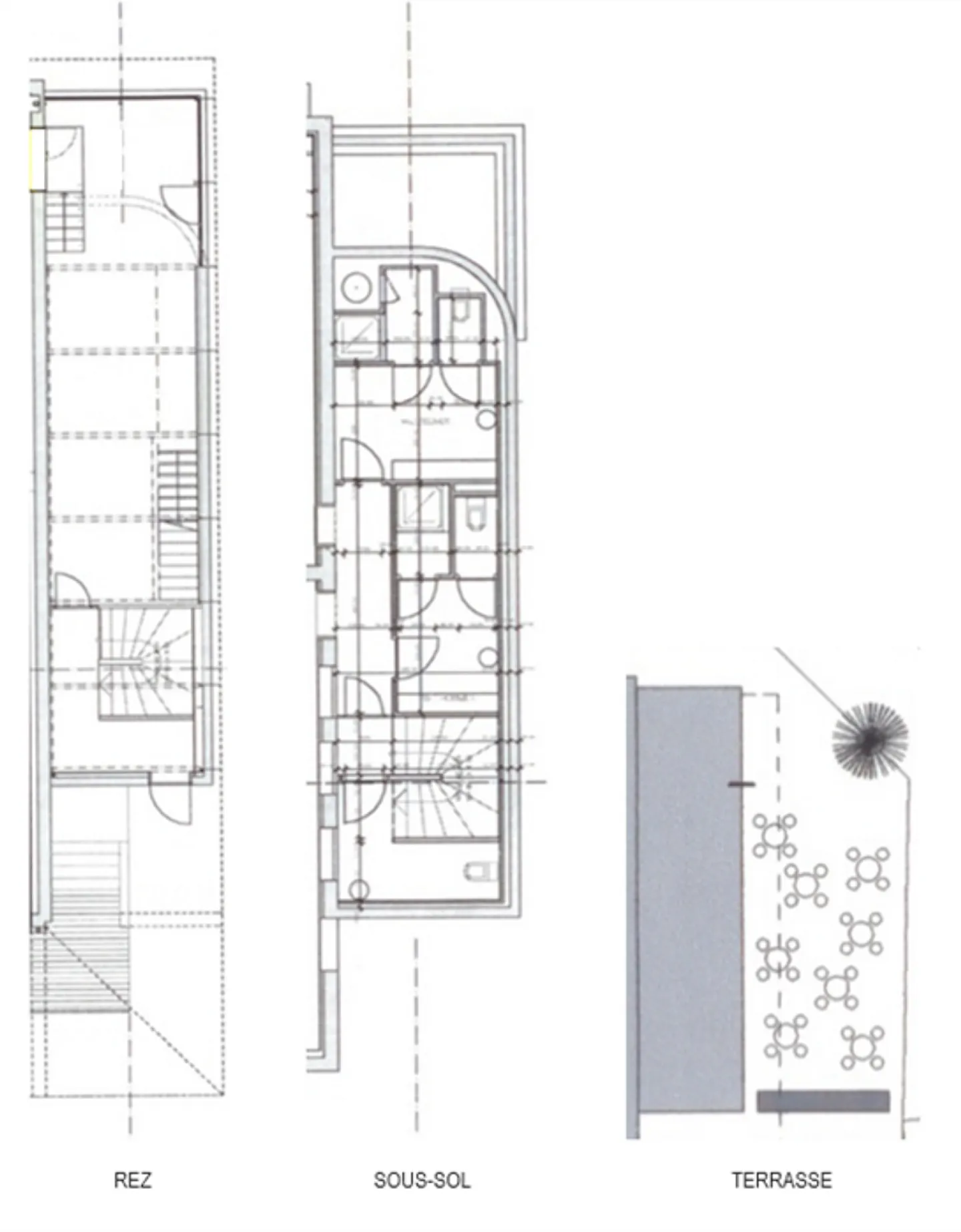
Ristorante situato a Sion vicino alla zona industriale, in un quartiere ad alta densità di popolazione, con diversi posti auto per i clienti, disposizione di sedie e tavoli, tutte le macchine sono funzionanti, la cucina è completamente attrezzata e i locali sono climatizzati.
Oggetto: Ristorante o Negozio
Superficie: 75 m2 per ristorante e 20 m2 per deposito
Numero di posti: 35 posti all'interno e 25 posti in terrazza
Posti a...
Ripartizione dei costi
- Affitto netto
- CHF 2’250
- Costi aggiuntivi
- CHF 300
- Totale delle locazioni
- CHF 2’250
Dettagli immobile
- Disponibile dal
- Su accordo
- Superficie abitabile
- 95 m²



