Edificio ad uso misto in affitto - Mittlere Strasse 52, 3600 Thun
Perché amerai questa proprietà
Accesso diretto al magazzino
Area espositiva esterna
Vicino ai mezzi pubblici
Organizza una visita
Prenota una visita con Wohnplus oggi!
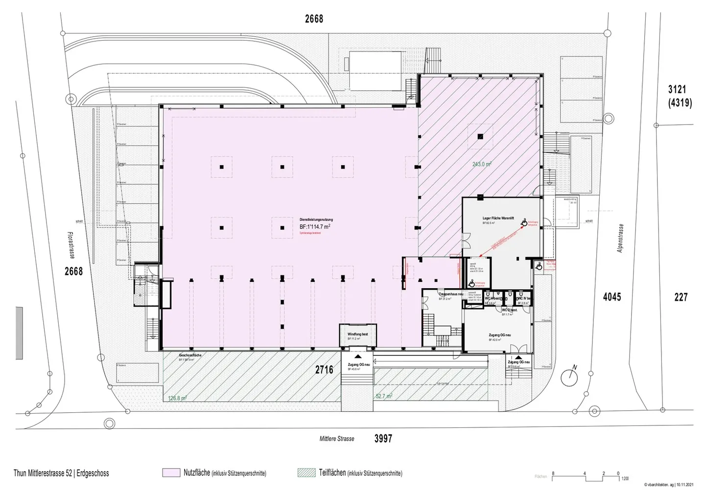
1500 m2 al piano terra
Area interna con suddivisione vendita/magazzino, piccola cucina
Area espositiva all'aperto
Rampe di carico con elevatore con accesso diretto al magazzino
Ascensore merci al piano interrato
Parcheggio per clienti disponibile
Prezzo indicativo: CHF 150.00/m2 più costi aggiuntivi & IVA.
La fermata dell'autobus più vicina (<>, <>) è a circa 100 m e il tempo di percorrenza fino alla stazione ferroviaria SBB di Thun è di circa 2 minuti.
La stazione ferroviaria di...
Dettagli immobile
- Disponibile dal
- Su accordo
- Parcheggio esterni
- 1
- Anno di ristrutturazione
- 2023



