Edificio ad uso misto in affitto - Klosterstrasse 22, 8406 Winterthur
Perché amerai questa proprietà
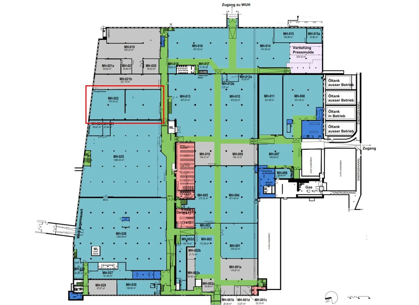
Fino a 9.000 m² disponibili
Ottimo accesso all'autostrada
Strutture moderne in loco
Organizza una visita
Prenota una visita con maison.work oggi!
Magazzino con luce naturale
On the Vitus site, the heritage of the traditional production industry is palpable, yet the dynamics on the tech campus are being reignited: The paths to the new old district are shorter than ever, the fences are gone, the gates are open. This creates a place for innovative business and a well-curated mix of companies, but also for the residents of Winterthur themselves. Zurich with its airport is almost around the corner, and the transport connections via train and mo...
Dettagli immobile
- Disponibile dal
- Su accordo
- Superficie abitabile
- 470 m²
- Superficie utilizzabile
- 470 m²



