Edificio ad uso misto in affitto - Route De Pré-Bois 1, 1214 Vernier
Perché amerai questa proprietà
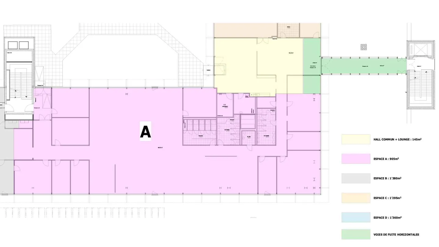
Spazio di 1'380 m² adattabile
Cucina privata e docce
Posizione strategica vicino ai trasporti
Organizza una visita
Prenota una visita con Klaus oggi!
Situato all'ultimo piano dell'edificio IKEA, questo spazio versatile di 1.380 m² è ideale per un'attività artigianale, tecnologica o terziaria.
Già suddiviso in 4 spazi attrezzati, offre un ambiente di lavoro funzionale e adattabile alle tue esigenze.
Caratteristiche dello spazio:
- 5.000 m² suddivisi in 4 spazi pronti all'uso.
- Area comune con reception e caffetteria.
- Cucina privata, servizi igienici e docce per un comfort ottimale.
- Possibilità di layout personalizzato in base alle tue esigenz...
Dettagli immobile
- Disponibile dal
- Su accordo
- Superficie abitabile
- 1380 m²
- Superficie utilizzabile
- 1380 m²



