Commerciale in affitto - Vorauen, 8750 Klöntal
Perché amerai questa proprietà
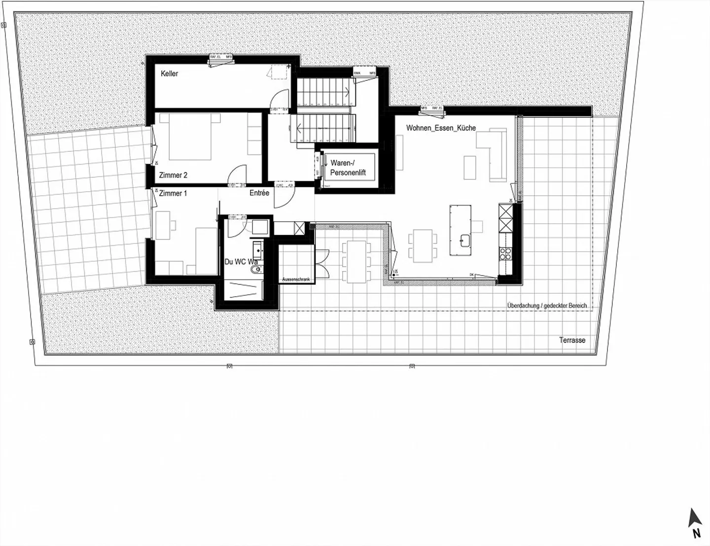
Design aperto e versatile
Eccellenti collegamenti di trasporto
Parcheggio disponibile per visitatori
Organizza una visita
Prenota una visita con Ziegler oggi!
La tua nuova posizione nel verde!
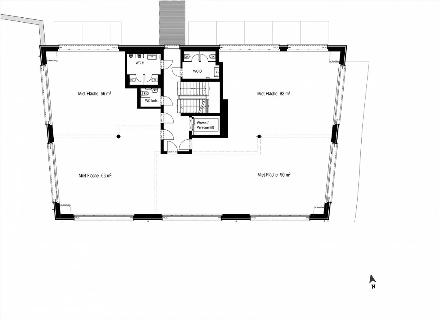
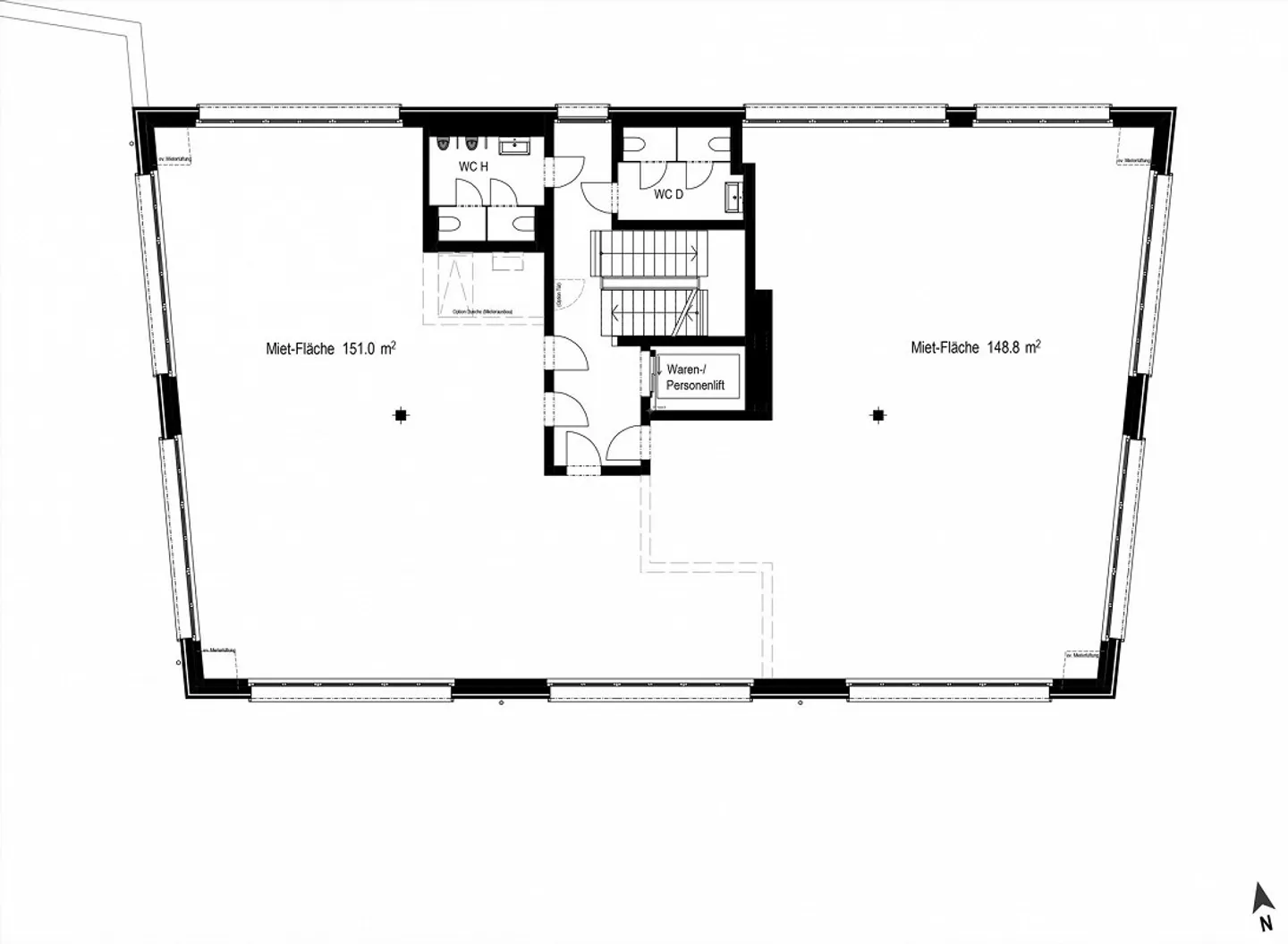
Lo sviluppo residenziale e commerciale Unter Vorauen con 41 appartamenti e 600m2 di spazio commerciale colpisce in vari modi:
- Inizio affitto possibile dal 4° trimestre 2025
- Lo sviluppo convince con il suo stile di costruzione aperto e si integra perfettamente nell'ambiente agricolo.
- La vicinanza all'accesso all'autostrada e il collegamento ai mezzi pubblici sono tra i vantaggi determinanti di questo sviluppo.
- Internamente, gli spazi commerciali hanno aree di pavimento aperte e versatili, che...
Dettagli immobile
- Disponibile dal
- Su accordo
- Anno di costruzione
- 2025



