Spazio ufficio in affitto - Via Quatorta, 6533 Lumino
Perché amerai questa proprietà
Accessibile a tutti
Pavimento modulabile
Servizio di portineria 24h
Organizza una visita
Prenota una visita oggi!
Uffici in moderno stabile
UFFICI IN MODERNO STABILE
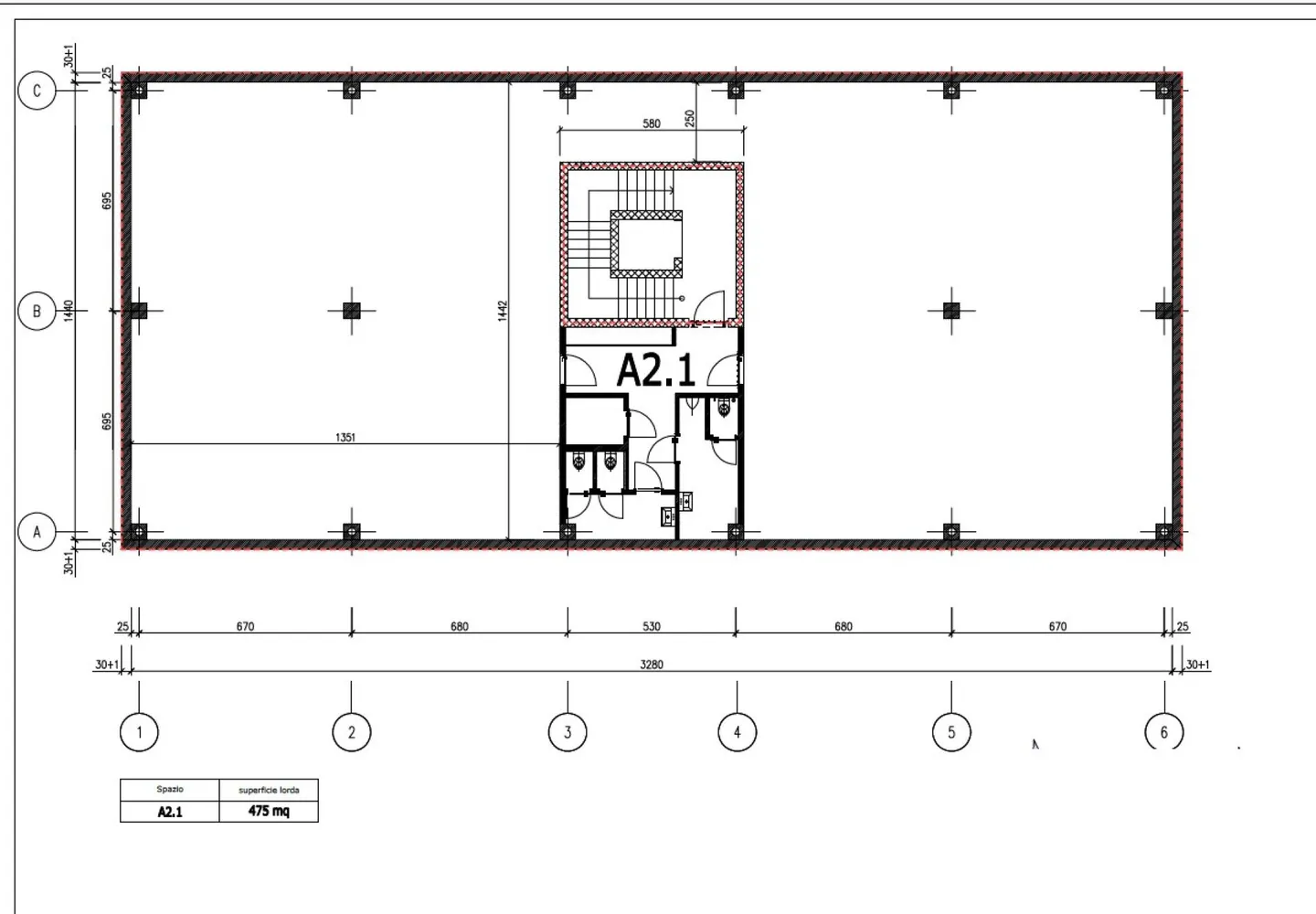
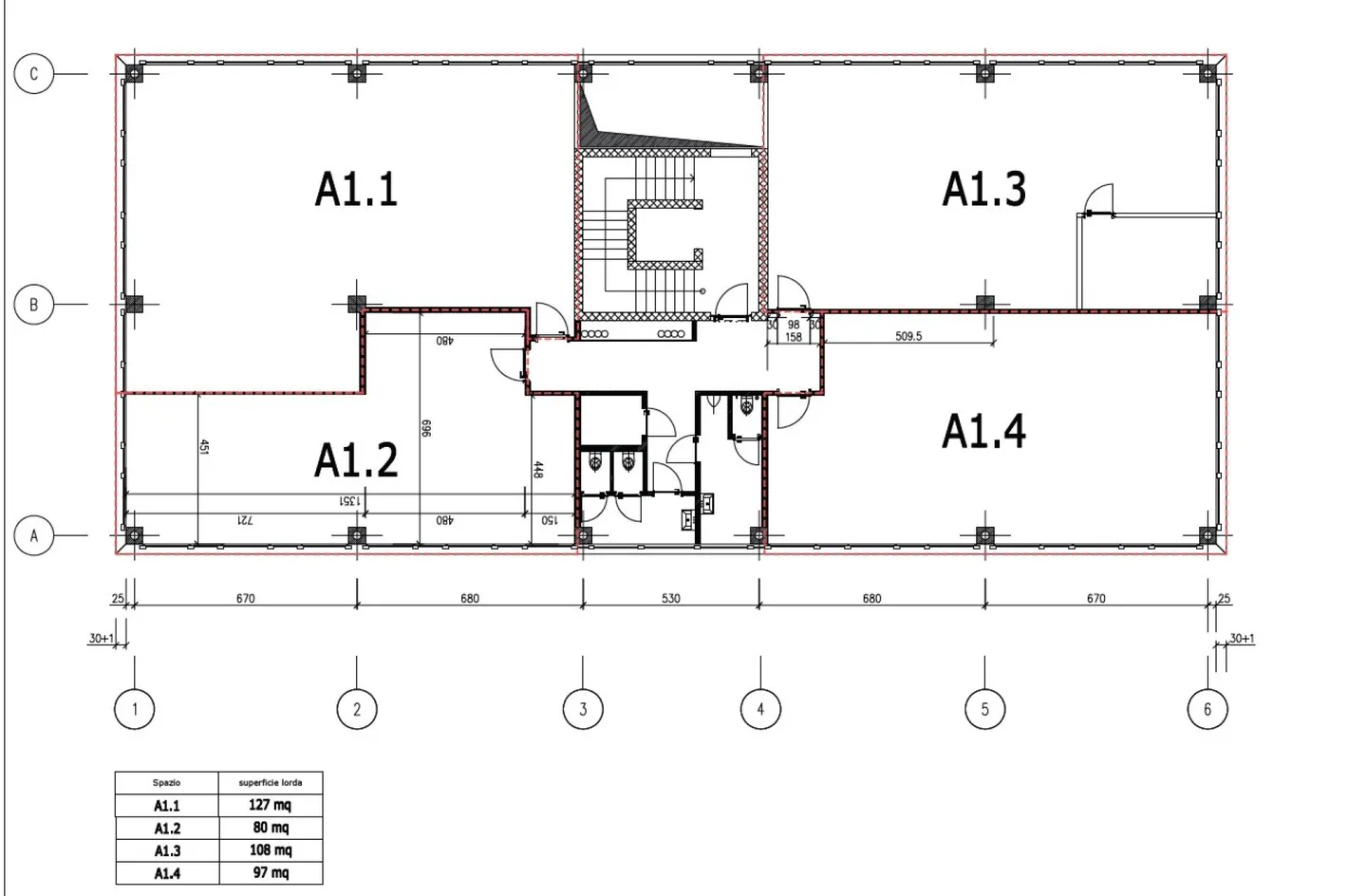
A Lumino, in zona industriale e strategica, presso il moderno stabile "Centro Commerciale Artigianale Quatorta", si affittano quattro uffici.
Spazio A1.2 80mq – primo piano (eventualmente anche parzialmente ammobiliato)
Pigione netta annuale: CHF/anno 16'000.—(CHF/mq 200.—)
Acconto spese accessorie CHF/anno 1'800.—
Spazio A1.3 108mq – primo piano
Pigione netta annuale: CHF/anno 21'600.—(CHF/mq 200.--)
Acconto spese accessorie CHF/anno 2'150.—
Spazio A1.4 97mq – primo piano
Pigio...
Ripartizione dei costi
- Affitto netto
- CHF 17’800
- Costi aggiuntivi
- CHF 1’800
- Totale delle locazioni
- CHF 17’800
Dettagli immobile
- Disponibile dal
- Su accordo
- Bagni
- 1



