Spazio ufficio in affitto - Via Cantonale, 6532 Castione
Perché amerai questa proprietà
Modulabile e personalizzabile
Servizi di wellness e ristorazione
A 1 ora da Milano
Organizza una visita
Prenota una visita con Maurizio oggi!
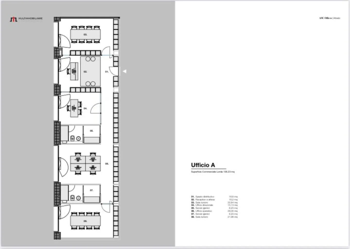
Spazio commerciale castione arbed smart center
Descrizione
Arbed Smart Center, location multifunzionale che comprende spazi dedicati ad uffici, sale meeting e smart apartments con servizi di ristorazione e wellness.
L Arbed Smart Center sorge a Castione Arbedo, localita a nord del Cantone Ticino raggiungibile in poco piu di un ora di automobile da Milano e ad un ora e mezza da Zurigo.
Proponiamo gli ultimi spazi commerciali/uffici disponibili completamente modulabili e personalizzabili.
Spazio commerciale/ufficio di 138.23mq.
Prezzi al mq:
Consegn...
Dettagli immobile
- Disponibile dal
- 14.12.2023
- Stanze
- 1
- Superficie abitabile
- 138 m²
- Superficie utilizzabile
- 138 m²


