Spazio ufficio in affitto - Rue Kitty-Ponse, 1205 Genève
Perché amerai questa proprietà
Architettura Haussmann prestigiosa
Posizione ideale, vicino parco
Materiali di alta qualità
Organizza una visita
Prenota una visita con Pardo oggi!
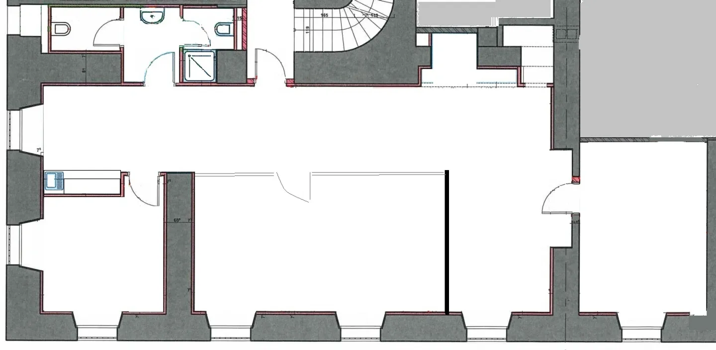
Bellissimo spazio ufficio vicino al centro
Questo edificio, costruito all'inizio del XX secolo con la sua magnifica architettura haussmanniana, ti offre una bella carta da visita!
Beneficia di una posizione ideale, a pochi passi dal Parco dei Bastioni e dal rondò di Plainpalais: vicino a tutti i servizi, negozi, ristoranti, parcheggi, linee di autobus e tram.
Ti offriamo un bel spazio ufficio nel seminterrato con molto fascino grazie a materiali di alta qualità.
È attrezzato come segue:
- uno spazio aperto
- due uffici chiusi
- area sanitar...
Dettagli immobile
- Disponibile dal
- 16.10.2025
- Anno di costruzione
- 1911
- Superficie abitabile
- 118 m²
- Superficie utilizzabile
- 118 m²



