1 / 14

Spazio di archiviazione in affitto - Route D'avenches, 1580 Donatyre

4200 m² • 10100 m² Plot
CHF 38’500.-
CHF 110 m² / year

Perché amerai questa proprietà

Altezza soffitto 5,5m

Elevata capacità di carico

Accesso facile al dock di carico

Organizza una visita

Prenota una visita con Etienne oggi!

Etienne Baudriller
LVTiC Sàrl
Questa descrizione è stata tradotta automaticamente da Francese.

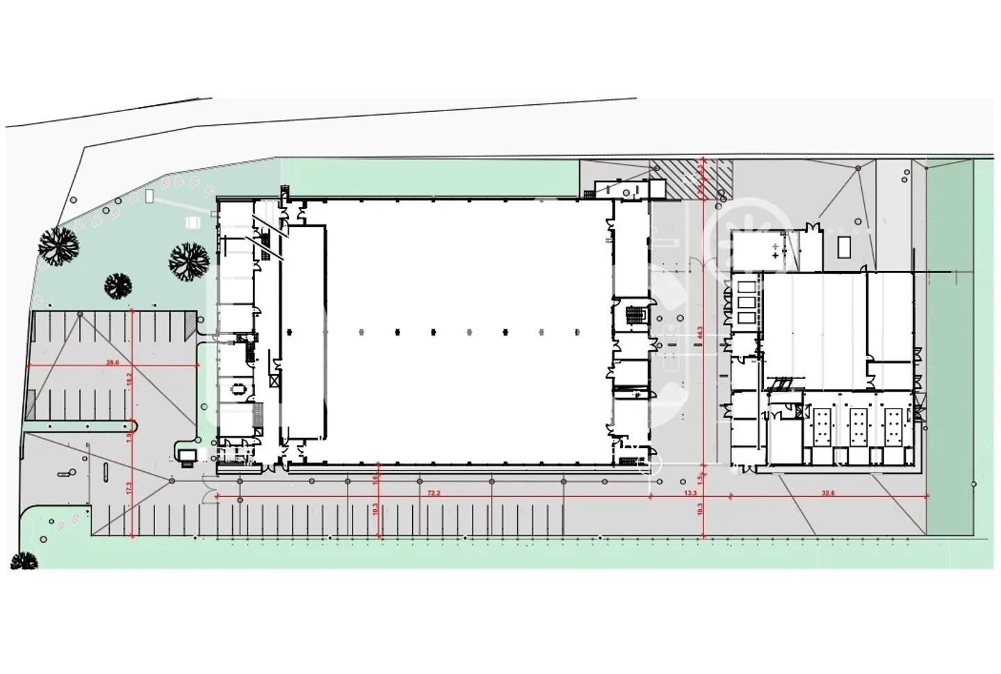
Capannone industriale, uffici di 4200 m2 divisibili in affitto ad avenches

Capannone industriale, laboratori, magazzini, uffici di 4200 m2 divisibili in affitto ad Avenches

1- Capannone industriale e uffici di 3300 m2

Capannone industriale di 2600 m2

Accesso a livello del suolo tramite 2 grandi porte sezionali

Accesso tramite un dock di carico con una piastra elevatrice di 2500 kg

Altezza: 5,50 m

Carico a terra: 2000 kg/m2

Ampere: 4330 A. (trifase)

Gru a ponte di 12,5 tonnellate

Allarme, rilevazione incendi e sprinkler

Riscaldamento a distanza

Uffici e locali di 700 m2

Dettagli immobile

Disponibile dal
01.10.2024
Superficie abitabile
4200
Superficie utilizzabile
4200
Superficie terreno
10100

Caratteristiche

Parcheggio

Agenzia

LVTiC Sàrl
Indirizzo:Rue du Vergnolet 8, 1070, Puidoux
Etienne Baudriller
Ref: 4947345
Online da
11/09/2025
un mese fa

Località

Route D'avenches, 1580 Donatyre