Spazio ufficio in affitto - Piazza Indipendenza, 6830 Chiasso
Perché amerai questa proprietà
Edificio storico moderno
Layout spazioso e flessibile
Posizione privilegiata con servizi
Organizza una visita
Prenota una visita oggi!
Ufficio
Soluzione ottimale per la tua azienda
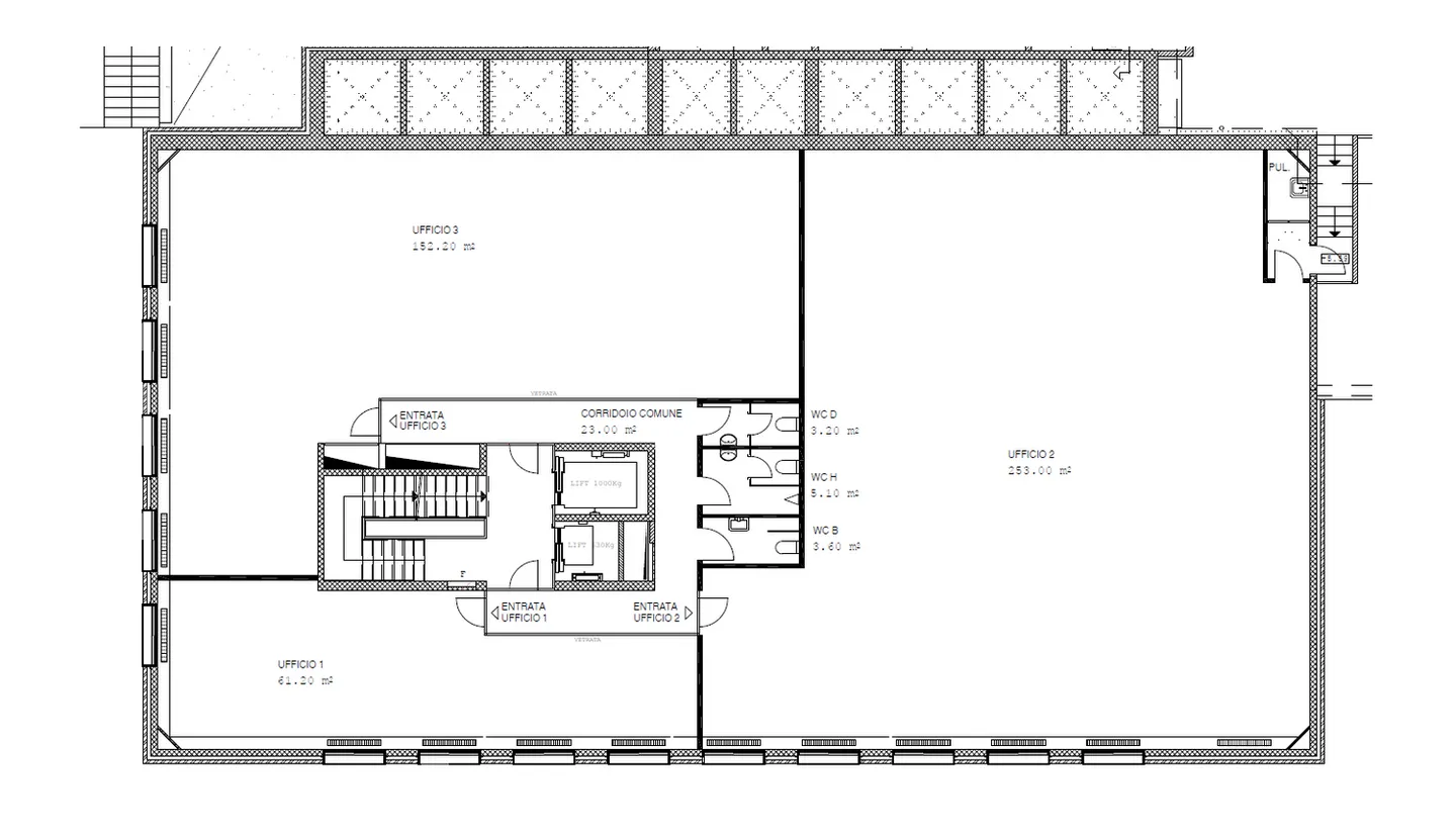
In Piazza Indipendenza, in un edificio storico di proprietà di Posta SA, sarà creato un ampio e pratico spazio commerciale di 253 m2 in un nuovo e moderno concetto atmosferico. Prezzo al m2 di CHF 180.-, costi aggiuntivi CHF 40.- per m2.
Lo spazio commerciale è adatto per grandi aziende che cercano modernità e praticità per la loro sede centrale. Superficie modulare spaziosa situata nel centro di Chiasso, a metà strada tra Lugano e Milano in un contesto comm...
Dettagli immobile
- Disponibile dal
- Su accordo



