1 / 3

Spazio ufficio in affitto - Münsterberg, 4051 Basel

316 m² • 4° piano
Prezzo su richiesta
-

Perché amerai questa proprietà

Fascino dell'architettura storica

Uffici luminosi con grandi finestre

Cucina completamente attrezzata

Organizza una visita

Prenota una visita oggi!

Wincasa SA - Siège
Questa descrizione è stata tradotta automaticamente da Tedesco.

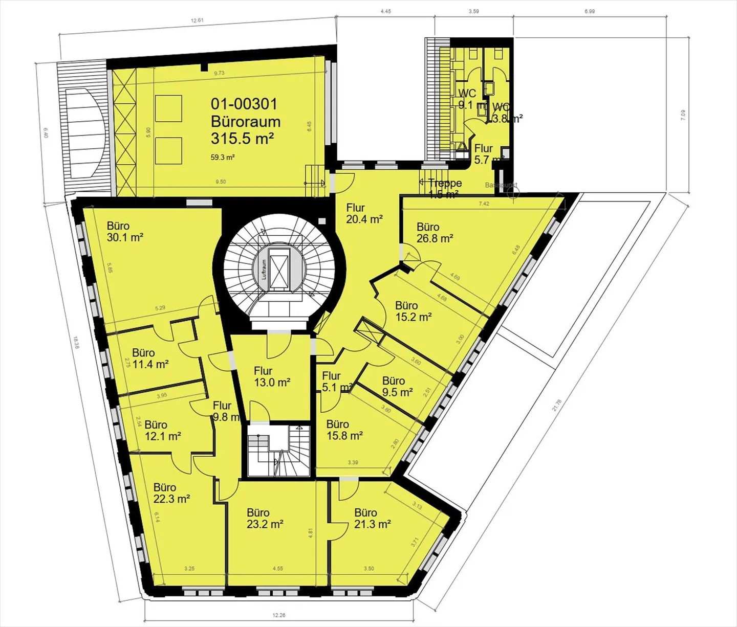
Spazio ufficio nel cuore di basilea

Vi presentiamo uno spazio ufficio speciale in una posizione centrale - una proprietà che colpisce per la sua disposizione funzionale e le sue versatili opzioni di utilizzo. Un totale di circa 316 m² si estende su un'area finemente strutturata, ideale per aziende che necessitano di diversi uffici individuali o di team. La disposizione delle stanze ben pensata consente un lavoro concentrato così come una comunicazione efficiente - ideale per agenzie, studi legali o team basati su progetti. Ampie f...

Dettagli immobile

Disponibile dal
Su accordo
Superficie abitabile
316
Superficie utilizzabile
316

Agenzia

Wincasa SA - Siège
Indirizzo:Grosspeteranlage 5+7, 4052, Basel

Località

Münsterberg, 4051 Basel

Fonti