1 / 3

Commerciale in affitto - Limmattalstrasse, 8049 Zürich

CHF 2’750.-
-

Perché amerai questa proprietà

Qualità costruttiva sostenibile

Ampio spazio di 106m²

Ideale per attività tranquille

Organizza una visita

Prenota una visita con Kevin oggi!

Kevin Braunwalder, SüdNord Immobilienmanagement AG
SüdNord Immobilienmanagement AG
Questa descrizione è stata tradotta automaticamente da Tedesco.

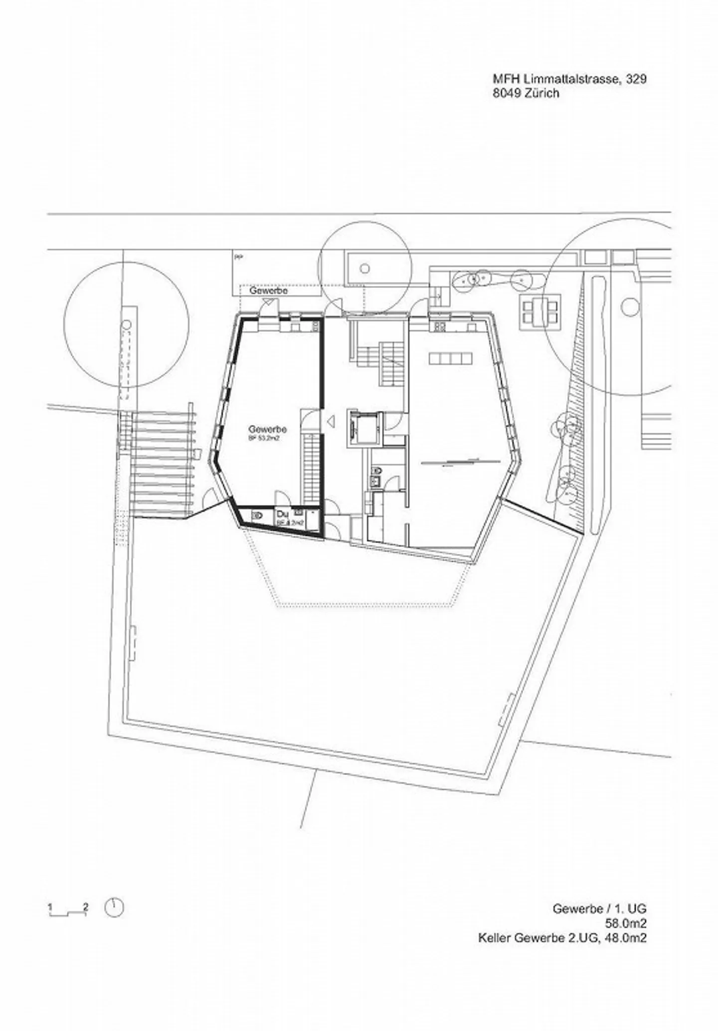
Spazio commerciale in una proprietà architettonicamente impressionante

In una zona residenziale popolare e ben collegata di Zurigo-Höngg, si trova questo edificio multifamiliare con vari appartamenti e uno spazio commerciale.

In Limmattalstrasse 329 si trova un edificio che impressiona per la sua architettura premiata e una qualità costruttiva particolarmente alta e sostenibile, tra l'altro grazie a una pompa di calore geotermica e alla propria produzione solare.

Attraverso un ingresso separato, si accede allo spazio commerciale ben visibile a livello della strada.

I ...

Dettagli immobile

Disponibile dal
Su accordo
Anno di costruzione
2020

Caratteristiche

Garage
Parcheggio
Ascensore

Agenzia

SüdNord Immobilienmanagement AG
Indirizzo:Zürich, Dufourstrasse 77, 8008
Ref: 2085.202502.9001

Località

Limmattalstrasse, 8049 Zürich

Fonti