Spazio di archiviazione in affitto - Industrie Bännli, 4628 Wolfwil
Perché amerai questa proprietà
Eccellente accesso autostradale
Personalizzazione degli spazi
Ampio parcheggio disponibile
Organizza una visita
Prenota una visita oggi!
Spazi commerciali di alta qualità a wolfwil vicino a egerkingen in affitto
Posizione perfetta a Wolfwil - a soli 10 minuti dall'uscita autostradale di Egerkingen
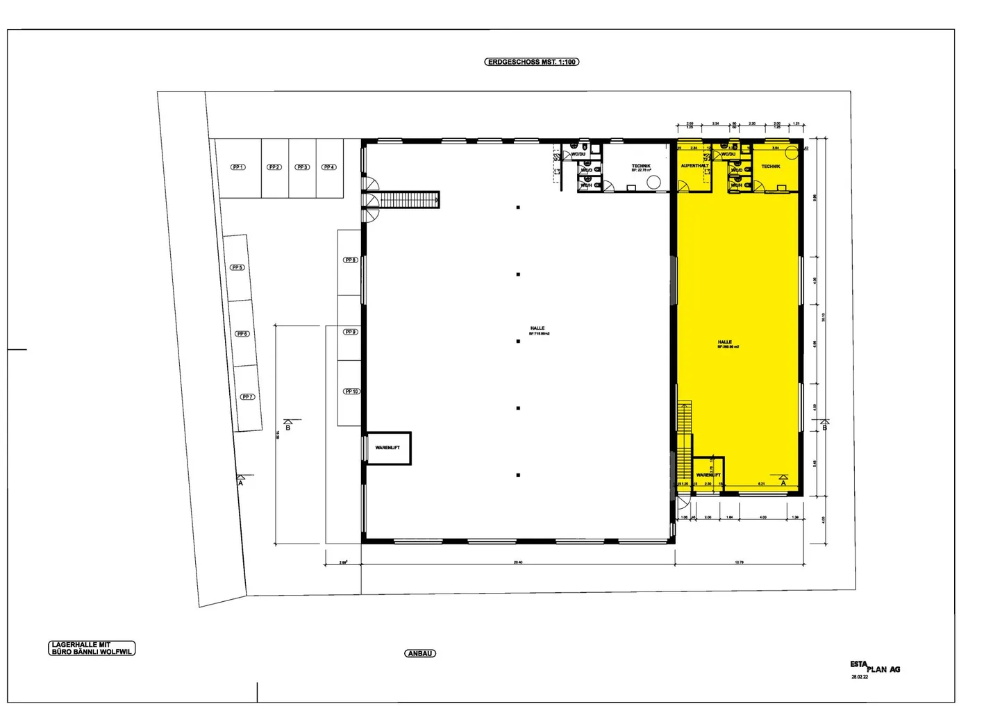
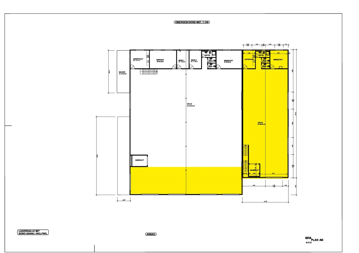
Spazi disponibili: da 30 a 850 m²
Stai cercando uno spazio commerciale di alta qualità in una posizione centrale?
Allora abbiamo la soluzione ideale per te!
Questa attraente proprietà a Wolfwil si trova a soli 10 minuti dall'uscita autostradale di Egerkingen e offre un eccellente accesso alla rete di trasporti regionale e nazionale.
Sono disponibili bagni separati per donne e uomini, oltre a una sala docce. Su rich...
Dettagli immobile
- Disponibile dal
- Su accordo
- Stanze
- 3
- Bagni
- 2
- Anno di costruzione
- 2025
- Superficie abitabile
- 348 m²
- Superficie utilizzabile
- 348 m²



