Commerciale in affitto - Freihofstrasse, 7302 Landquart
Perché amerai questa proprietà
Layout degli spazi flessibile
Showroom con soffitti alti
Terrazza sul tetto disponibile
Organizza una visita
Prenota una visita con Peng oggi!
Spazi commerciali in posizione privilegiata
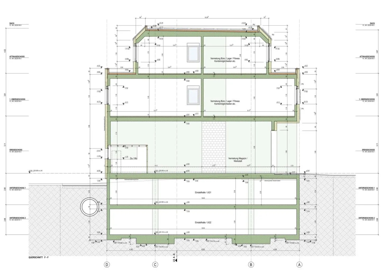
Spazi commerciali moderni in una nuova hall commerciale in costruzione su 3 piani in Freihofstrasse, con superfici commerciali che vanno da 50 a 840 m2 per piano. Gli spazi commerciali possono essere suddivisi in modo flessibile (min. 50 m2). Inoltre, saranno realizzati un totale di 60 posti auto nei 2 piani interrati.
Al piano terra si trova un showroom rappresentativo e ulteriori spazi commerciali per officine, riviste, magazzini, ecc. con un'altezza di oltre 4,65 m.
Al 1° piano e nel sottotetto...
Dettagli immobile
- Disponibile dal
- Su accordo
- Anno di costruzione
- 2026



