Proprietà industriale in affitto - En Budron E, 1052 Le Mont-sur-Lausanne
Perché amerai questa proprietà
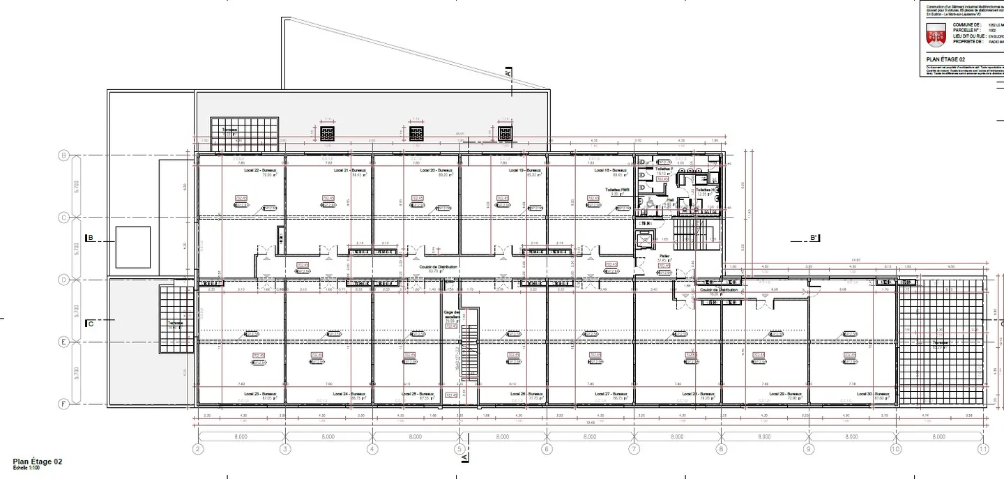
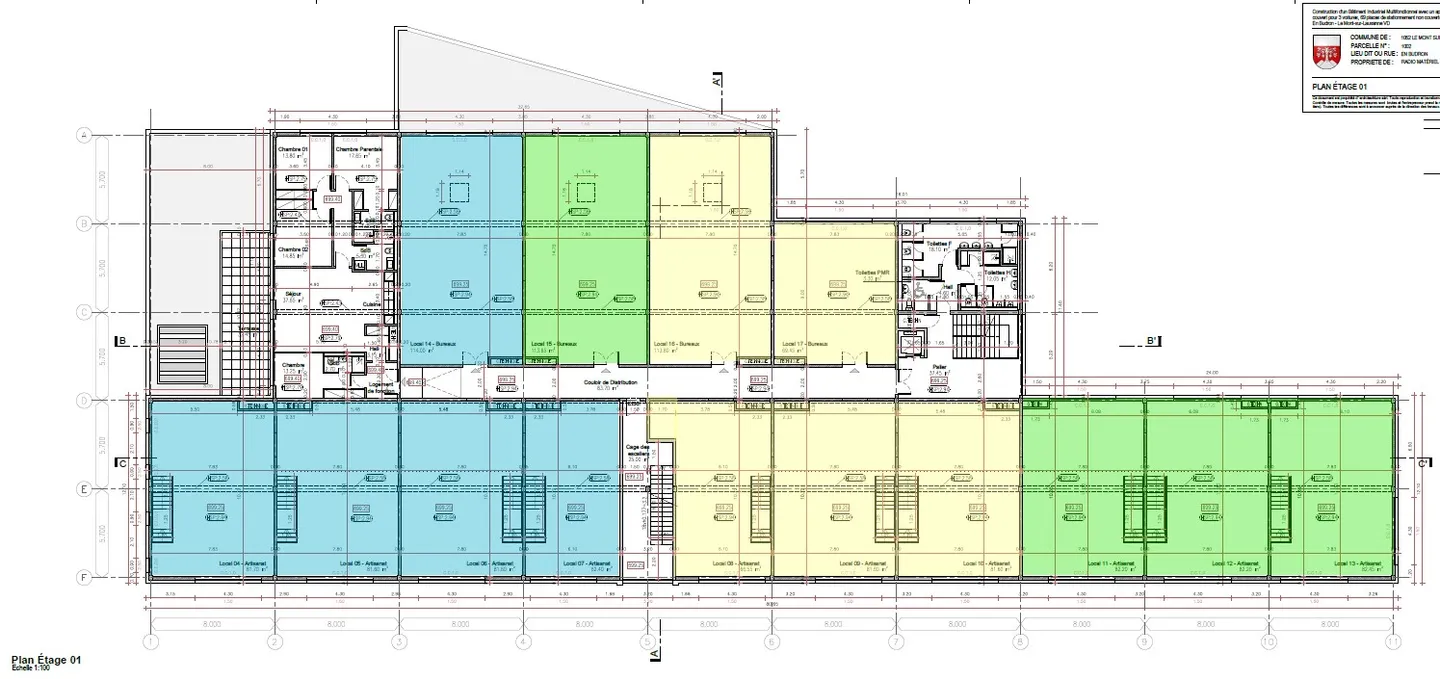
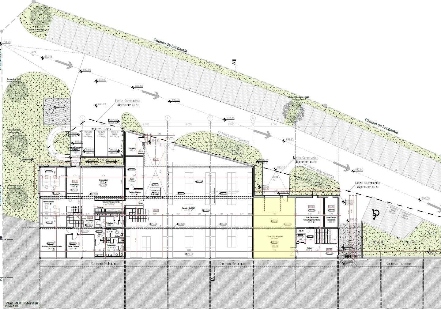
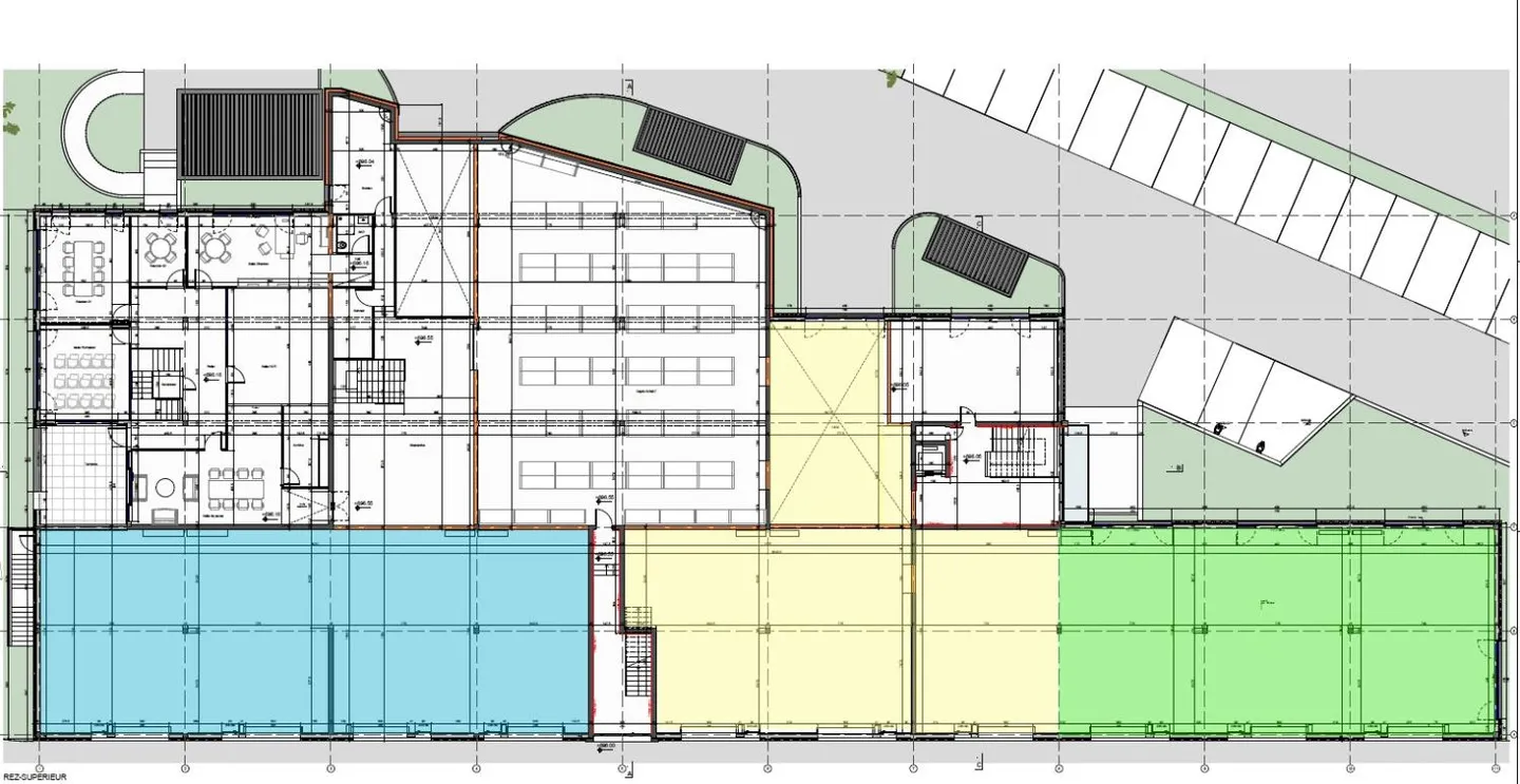
Spazi modulari disponibili
Altezza soffitti nei laboratori
Uffici luminosi ai piani superiori
Organizza una visita
Prenota una visita con Picque oggi!
Proprietà industriale
Nuovi laboratori e uffici in affitto – ZI Budron, Mont-sur-Lausanne – Lotti modulari a partire da 381 m² – Edificio Minergie
Situato nel cuore della zona industriale di Budron a Mont-sur-Lausanne, questo nuovo sviluppo offre un'opportunità unica per le aziende che cercano spazi moderni, modulari ed efficienti. Progettato per ospitare attività industriali e artigianali di qualità, questo progetto misto combina laboratori al piano terra e uffici al piano superiore, il tutto in un edificio Minergie...
Dettagli immobile
- Disponibile dal
- Su accordo
- Superficie abitabile
- 2365 m²



