Spazio ufficio in affitto - Corso Elvezia, 6900 Lugano
Perché amerai questa proprietà
Opzioni di layout flessibili
Posizione in edificio prestigioso
Aria condizionata inclusa
Organizza una visita
Prenota una visita oggi!
Ufficio - lugano
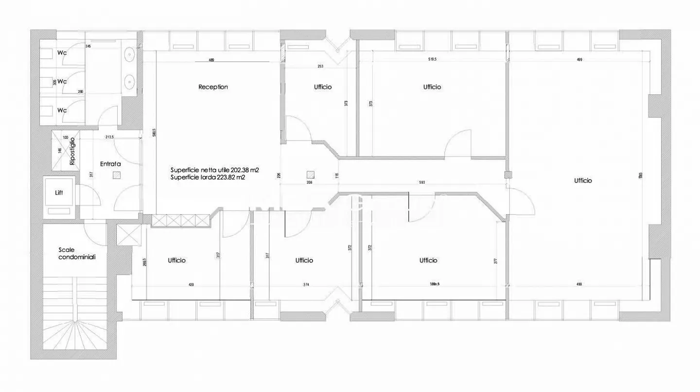
In centro Lugano, proponiamo un ufficio di circa 210 mq, uno spazio funzionale e facilmente modulabile in base alle esigenze della vostra attività. L'ampio ingresso permette di realizzare una reception accogliente, mentre la distribuzione interna si presta a una suddivisione flessibile degli ambienti.
L'immobile è dotato di aria condizionata, doppi servizi separati uomo/donna e una superficie già cablata , con possibilità di ulteriori adattamenti tecnici.
Inserito in uno stabile di prestigio, rapp...
Dettagli immobile
- Disponibile dal
- Su accordo
- Superficie abitabile
- 224 m²



