Laboratorio in affitto - Chemin De Budron, 1052 Le Mont-sur-Lausanne
Perché amerai questa proprietà
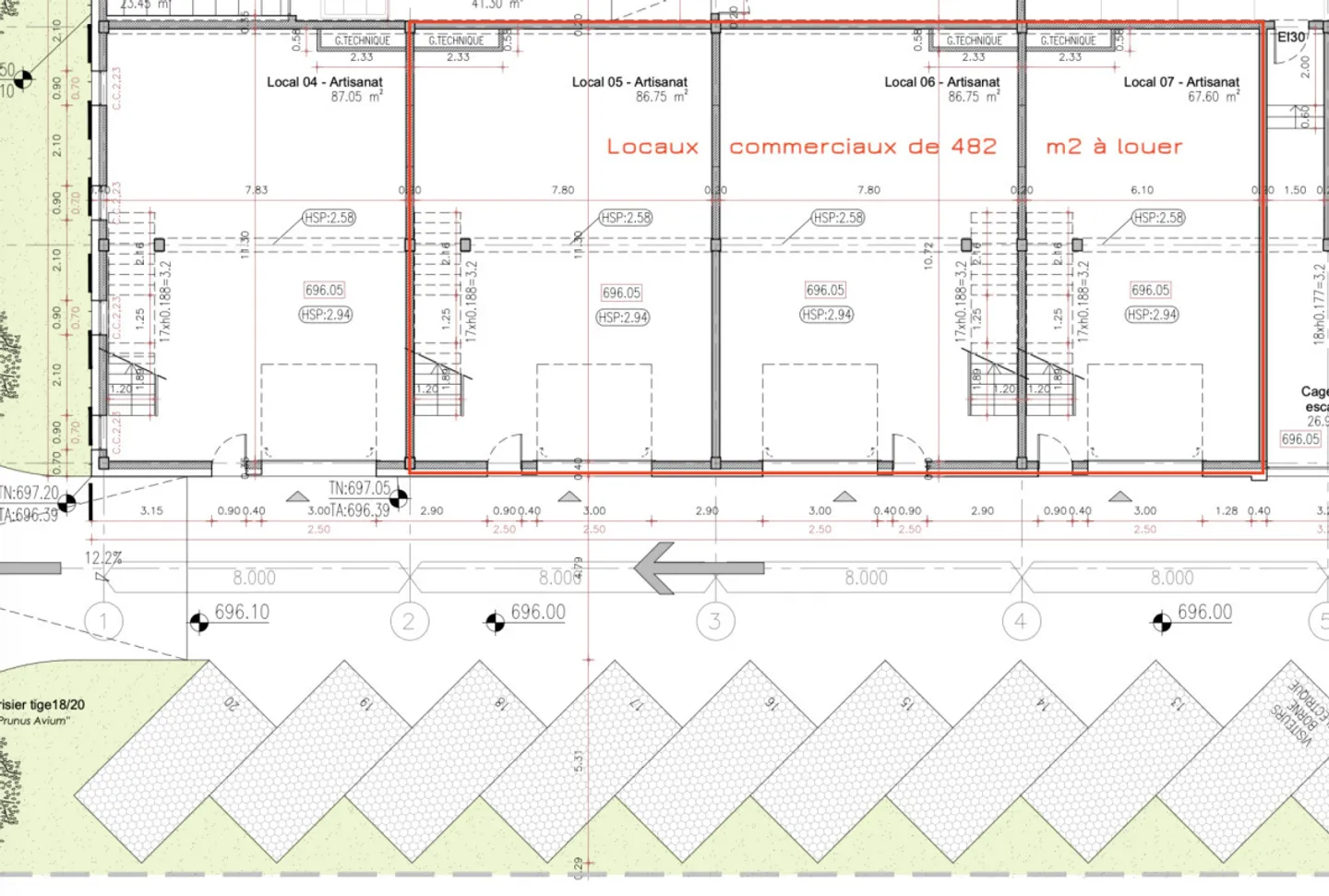
Spazi flessibili da 310 m²
Posizione strategica vicino alle autostrade
Edificio a basso consumo energetico
Organizza una visita
Prenota una visita oggi!
Il tuo nuovo spazio laboratorio / produzione / ufficio - da 310 m2 a 1.000 m2 con soffitti alti
Posizione:
Situato a Mont-sur-Lausanne, in Budron, questo complesso immobiliare nuovo beneficia di una posizione strategica vicino agli accessi autostradali. L'accesso all'autostrada A9 (Ginevra - Aigle - Yverdon) si trova a pochi minuti, facilitando i collegamenti con il resto della Svizzera romanda, così come l'autostrada A1 che collega Berna e Zurigo.
Descrizione:
Edificio nuovo da costruire. Questo edificio moderno offrirà spazi versatili adatti ad attività commerciali, uffici, showroom, magazz...
Dettagli immobile
- Disponibile dal
- Su accordo
- Superficie abitabile
- 310 m²
- Superficie utilizzabile
- 310 m²



