Spazio ufficio in affitto - Bernstrasse, 3175 Flamatt
Perché amerai questa proprietà
856m2 di uffici moderni
Sale conferenze disponibili
Accesso facile all'autostrada A12
Organizza una visita
Prenota una visita oggi!
Grandi uffici | 850m2 | buone possibilità di accesso
Questi spazi per uffici attraenti completamente arredati si trovano direttamente sull'asse principale di traffico a Flamatt.
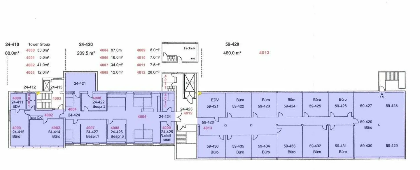
Layout
- Assegnazione: Ufficio
- Superficie: 856m2 (possibilità di affittare spazi di stoccaggio e archiviazione su richiesta)
- Piano: 2°
- Distribuzione dello spazio disponibile: uffici singoli, sale conferenze e uffici paesaggistici
- Rivestimento del pavimento: moquette
- Angolo cottura
- Collegamenti elettrici e di rete
- Collegamenti idrici
- Toilette e docce
- Montacarichi
- ...
Ripartizione dei costi
- Affitto netto
- CHF 13’553
- Costi aggiuntivi
- CHF 30
- Totale delle locazioni
- CHF 13’553
Dettagli immobile
- Disponibile dal
- 01.11.2024
- Superficie abitabile
- 856 m²
- Superficie utilizzabile
- 856 m²



