Negozio in affitto - Bahnhofstrasse, 9200 Gossau SG
Perché amerai questa proprietà
Partizioni in vetro flessibili
Direttamente alla stazione
Accesso facile per camion
Organizza una visita
Prenota una visita oggi!
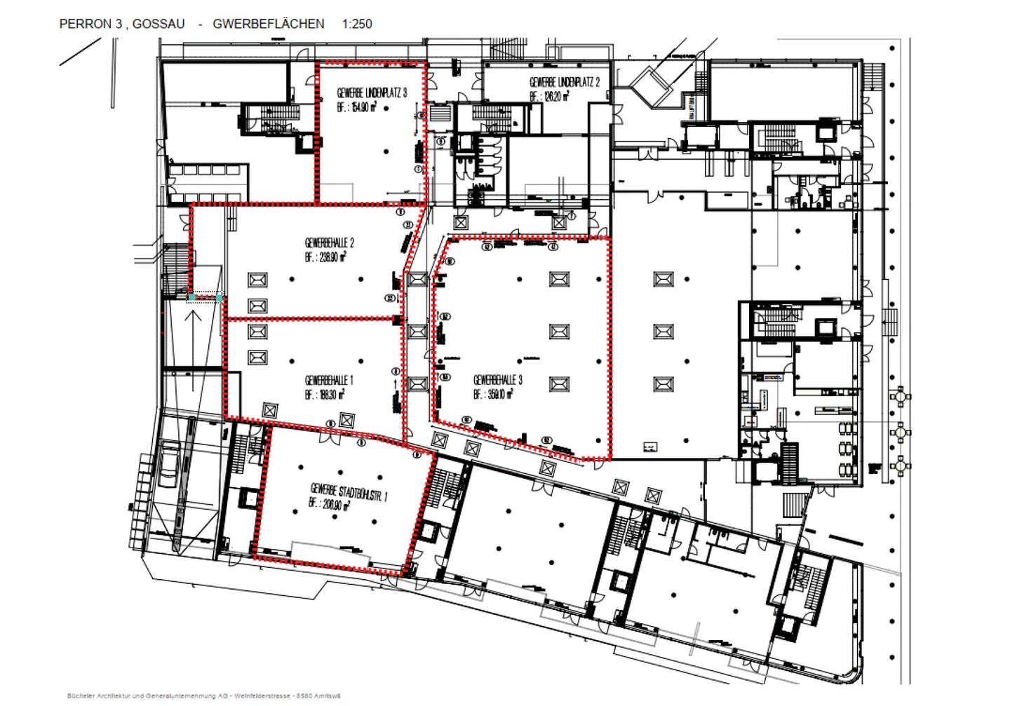
Spazi di vendita direttamente alla stazione di gossau - 789 m2!
Direttamente alla stazione di Gossau, gli spazi di vendita al piano terra nel binario 3 sono affittati immediatamente. Sono disponibili diverse aree parziali da 155 m2 a 1.150 m2 (vedi altre inserzioni).
Le aree possono essere collegate e sono dotate di pareti in vetro mobili che possono essere aperte/chiuse.
La consegna con camion da 40t è facilmente possibile. Sono disponibili posti auto nel garage sotterraneo per i visitatori.
Per ulteriori informazioni su espansione, disponibilità, ecc., puoi c...
Dettagli immobile
- Disponibile dal
- Su accordo
- Superficie abitabile
- 789 m²
- Superficie utilizzabile
- 789 m²



