Negozio in affitto - Avenue De La Gare, 1680 Romont FR
Perché amerai questa proprietà
Visibilità ottimale vicino alle stazioni
Spazio modulare da personalizzare
Parcheggio pubblico disponibile 24/7
Organizza una visita
Prenota una visita oggi!
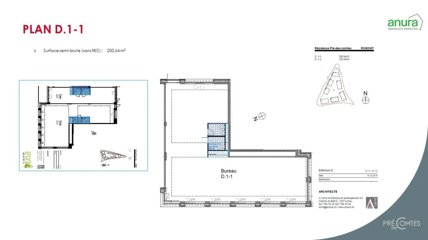
Negozio di 201 m2 a romont fr
Situato di fronte alla stazione di Romont, sopra il centro commerciale MIGROS, questo spazio modulare è in affitto semi-gross:
Superficie semi-grezza che può essere sviluppata a discrezione del locatario Visibilità ottimale di fronte alle stazioni ferroviarie e degli autobus di Romont Accesso alla superficie tramite ascensore Parcheggio commerciale pubblico disponibile per i clienti e aperto 24 ore su 24 Cortile interno attraversato da percorsi pubblici che collegano con il centro storico di Romo...
Ripartizione dei costi
- Affitto netto
- CHF 270
- Costi aggiuntivi
- CHF 30
- Totale delle locazioni
- CHF 270
Dettagli immobile
- Disponibile dal
- Su accordo
- Superficie abitabile
- 201 m²
- Superficie utilizzabile
- 201 m²



