Studio medico in affitto - Tägerhardstrasse 99, 5430 Wettingen
Perché amerai questa proprietà
WC privato con opzione di espansione
Accesso con ascensore e parcheggio
Sistema di riscaldamento e raffreddamento
Organizza una visita
Prenota una visita oggi!
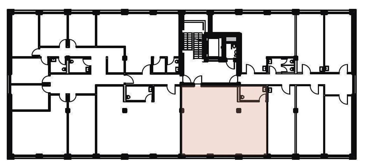
Studio/ufficio/studio legale/notariato, wc privato [opzione doccia/camerino]
MODERNO - NUOVA COSTRUZIONE - direttamente accanto a COOP-TÄGIPARK
Proprietà in affitto di 102m2 per
-Ufficio-Notariato-Studio-Pratica-Terapia-Formazione-
WC privato nella proprietà in affitto con possibilità di ampliamento per doccia/camerino.
Ascensore/scalinata, stazioni di ricarica per auto + e-bike, parcheggio per clienti, riscaldamento a soffitto incluso funzione di raffreddamento in estate.
Mercato di TägiPark accanto.
Ulteriori spazi commerciali e di stoccaggio, stanze d'archivio possono esser...
Ripartizione dei costi
- Affitto netto
- CHF 2’040
- Costi aggiuntivi
- CHF 240
- Totale delle locazioni
- CHF 2’040
Dettagli immobile
- Disponibile dal
- Su accordo
- Anno di costruzione
- 2025



