1 / 7

Studio medico in affitto - Tägerhardstrasse 99, 5430 Wettingen

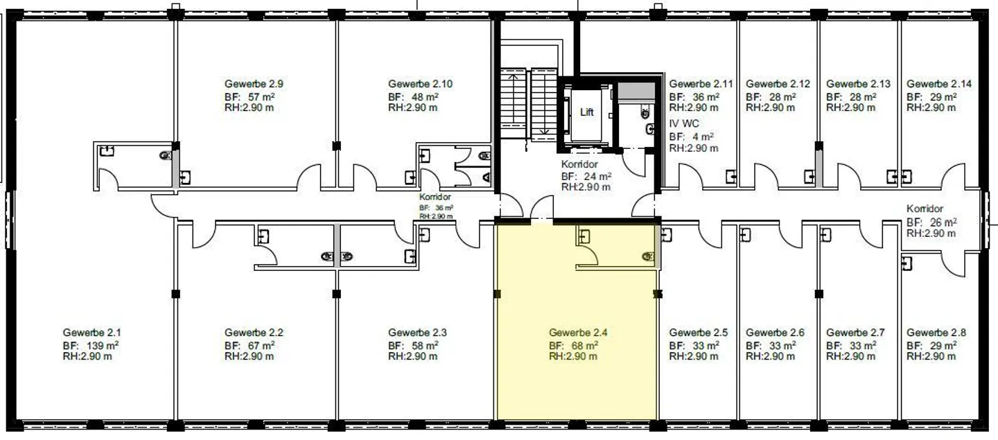
2° piano
CHF 1’415.-
-

Perché amerai questa proprietà

Ideale per terapia o bellezza

WC privato e doccia opzionale

Accesso con ascensore e parcheggio disponibile

Organizza una visita

Prenota una visita con Spörri oggi!

Spörri
Datomar Spörri-Treuhand AG
Questa descrizione è stata tradotta automaticamente da Tedesco.

Pratica/studio/cosmetici/bellezza (con wc, doccia opzionale) - 68m2 / nuovo

NUOVA COSTRUZIONE - direttamente accanto a COOP-TÄGIPARK

Proprietà in affitto di 68m2 > Suddivisione degli spazi opzionale possibile

> a causa del pavimento in Novilon e dell'allacciamento idrico, particolarmente adatto per terapia/pratica/cosmetici/bellezza

WC privato nella proprietà in affitto. Espansione opzionale con doccia e spogliatoio possibile.

Ascensore/scalinata, stazioni di ricarica per auto + e-bike, parcheggio per clienti, riscaldamento a soffitto incluso una piacevole funzione di raffr...

Dettagli immobile

Disponibile dal
Su accordo
Anno di costruzione
2025

Caratteristiche

Parcheggio
Ascensore
Internet
Accessibile ai disabili

Agenzia

Datomar Spörri-Treuhand AG
Ref: [T99-2.4]
Online da
20/10/2025
10 ore fa

Località

Tägerhardstrasse 99, 5430 Wettingen

Fonti