Studio medico in affitto - Tägerhardstrasse 99, 5430 Wettingen
Perché amerai questa proprietà
Layout flessibile
Bagno privato incluso
Accesso con ascensore & parcheggio
Organizza una visita
Prenota una visita con Spörri oggi!
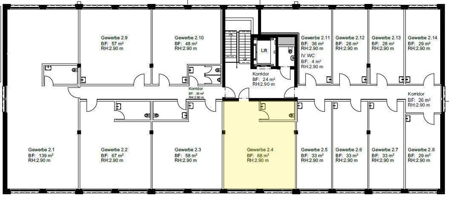
Cosmetici/Bellezza/Pratica/Studio (con WC, doccia opzionale) - 68m2 / Nuovo
NUOVA COSTRUZIONE - direttamente accanto a COOP-TÄGIPARK
Proprietà in affitto di 68m2 > Suddivisione degli spazi opzionale possibile con ad esempio 2 stanze di trattamento o uffici, ecc
> a causa del pavimento Novilon e dell'allacciamento idrico, particolarmente adatto per terapia/pratica/cosmetici/bellezza
WC privato nella proprietà in affitto. Espansione opzionale con doccia e spogliatoio possibile.
Piccola cucina, realizzabile anche in opzione nella proprietà in affitto.
Ascensore/scalinata,...
Ripartizione dei costi
- Affitto netto
- CHF 1’415
- Costi aggiuntivi
- CHF 175
- Totale delle locazioni
- CHF 1’415
Dettagli immobile
- Disponibile dal
- Su accordo
- Anno di costruzione
- 2025



