Commerciale in affitto - Tägerhardstrasse 99, 5430 Wettingen
Perché amerai questa proprietà
Opzioni di layout flessibili
Accesso con ascensore e parcheggio
Riscaldamento a soffitto con raffreddamento
Organizza una visita
Prenota una visita oggi!
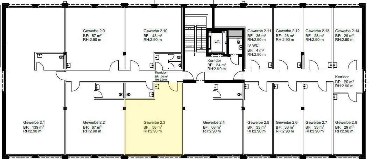
Ufficio/Studio/Spazio Commerciale con Lavabo - 58m2 al 2° Piano in Nuovo Edificio
NUOVO EDIFICIO - MODERNO - proprio accanto a COOP-TÄGIPARK
Proprietà in affitto di 58m2 per
> Ufficio-Notaio-Studio-Pratica-Terapia-Formazione
> Suddivisione degli spazi opzionalmente possibile con ad esempio due uffici, sala riunioni, ecc.
Lavabo proprio nella proprietà in affitto.
Piccola cucina, realizzabile anche opzionalmente nella proprietà in affitto.
Ascensore/scalinata, stazioni di ricarica per auto + e-bike, posti auto per clienti, riscaldamento a soffitto incluso la funzione di raffre...
Ripartizione dei costi
- Affitto netto
- CHF 1’215
- Costi aggiuntivi
- CHF 150
- Totale delle locazioni
- CHF 1’215
Dettagli immobile
- Disponibile dal
- Su accordo
- Anno di costruzione
- 2025


