Studio medico in affitto - Tägerhardstrasse 99, 5430 Wettingen
Perché amerai questa proprietà
Layout flessibile
Bagno privato incluso
Accesso con ascensore e parcheggio
Organizza una visita
Prenota una visita oggi!
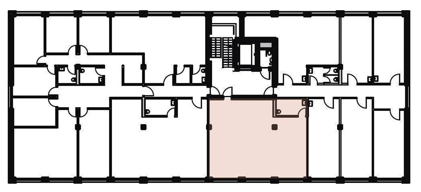
Studio/Ufficio/Studio Legale, WC privato [Doccia/Spogliatoio Opzionale]
MODERNO - NUOVA COSTRUZIONE - proprio accanto a COOP-TÄGIPARK
Proprietà in affitto di 102m2 per
> Ufficio-Notaio-Studio Legale-Pratica-Terapia-Formazione
> Suddivisione degli spazi opzionalmente possibile con ad esempio più uffici, sale riunioni, ecc
WC privato nella proprietà in affitto. Espansione opzionale con doccia e spogliatoio possibile.
Piccola cucina, anch'essa realizzabile in opzione nella proprietà in affitto.
Ascensore/scalinata, stazioni di ricarica per auto + e-bike, posti auto per...
Ripartizione dei costi
- Affitto netto
- CHF 2'040
- Costi aggiuntivi
- CHF 240
- Totale delle locazioni
- CHF 2'040
Dettagli immobile
- Disponibile dal
- Su accordo
- Anno di costruzione
- 2025



