Commerciale in affitto - Tägerhardstrasse 99, 5430 Wettingen
Perché amerai questa proprietà
Opzioni di layout flessibili
Lavabo privato incluso
Accesso con ascensore e parcheggio
Organizza una visita
Prenota una visita oggi!
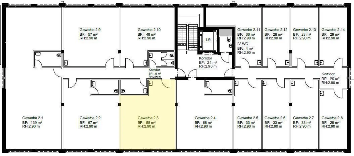
Ufficio/agenzia/commerciale con lavabo - 58m2 al 2° piano in nuova costruzione
NUOVA COSTRUZIONE - MODERNA - proprio accanto a COOP-TÄGIPARK
Proprietà in affitto di 58m2 per
> Ufficio-Notaio-Agenzia-Pratica-Terapia-Formazione
> Suddivisione degli spazi opzionalmente possibile con ad esempio due uffici, sala riunioni, ecc.
Lavabo proprio nella proprietà in affitto.
Piccola cucina, realizzabile anche opzionalmente nella proprietà in affitto.
Ascensore/scalinata, stazioni di ricarica per auto + eBike, posti auto per clienti, riscaldamento a soffitto incluso la funzione di raf...
Ripartizione dei costi
- Affitto netto
- CHF 1’215
- Costi aggiuntivi
- CHF 150
- Totale delle locazioni
- CHF 1’215
Dettagli immobile
- Disponibile dal
- Su accordo
- Anno di costruzione
- 2025



