Studio medico in affitto - Tägerhardstrasse 99, 5430 Wettingen
Perché amerai questa proprietà
Layout flessibile
Bagno privato incluso
Accesso con ascensore e parcheggio
Organizza una visita
Prenota una visita con Spörri oggi!
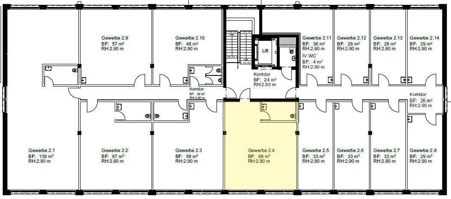
Cosmetica/Bellezza/Studio/Pratica climatizzato (con WC, doccia opzionale) - 68m2
NUOVA COSTRUZIONE - direttamente accanto al COOP-TÄGIPARK
Immobile in affitto di 68m2 > Divisione degli spazi opzionale possibile con ad esempio 2 sale per trattamenti o uffici, ecc.
> grazie al pavimento in Novilon e all'allacciamento idrico, particolarmente adatto per terapia/studio/cosmetica/bellezza
WC privato nell'immobile in affitto. Espansione opzionale con doccia e spogliatoio possibile.
Piccolo angolo cottura, anch'esso realizzabile opzionalmente nell'immobile in affitto.
Ascensore/sca...
Ripartizione dei costi
- Affitto netto
- CHF 1'415
- Costi aggiuntivi
- CHF 175
- Totale delle locazioni
- CHF 1'415
Dettagli immobile
- Disponibile dal
- Su accordo
- Anno di costruzione
- 2025



