1 / 5

Commerciale in affitto - Tägerhardstrasse 99, 5430 Wettingen

2° piano
CHF 1’215.-
-

Perché amerai questa proprietà

Accesso con ascensore comodo

Riscaldamento a soffitto rinfrescante

Parcheggio disponibile per clienti

Organizza una visita

Prenota una visita oggi!

Datomar Spörri-Treuhand AG
Questa descrizione è stata tradotta automaticamente da Tedesco.

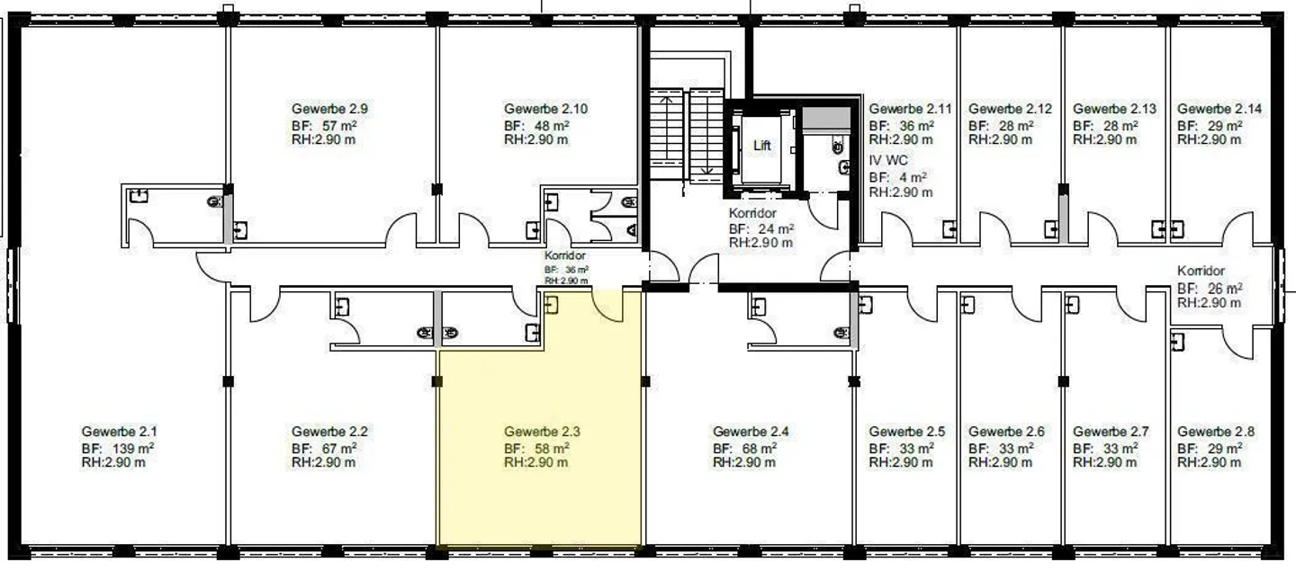
Ufficio/studio/spazio commerciale con lavabo - 58m2 al 2° piano in nuovo edificio

NUOVA COSTRUZIONE - MODERNA - proprio accanto a COOP-TÄGIPARK

Proprietà in affitto di 58m2 per

- Ufficio-Commercio-Studio-Pratica-Terapia-Formazione-

Lavabo privato nella proprietà in affitto.

Ascensore/Scala, stazioni di ricarica per auto + e-bike, parcheggio per clienti, riscaldamento a soffitto incluso la funzione di raffreddamento in estate.

Mercato di shopping TägiPark accanto.

Ulteriori spazi commerciali e di stoccaggio, stanze d'archivio possono essere affittate. > www.t99.ch

Dettagli immobile

Disponibile dal
Su accordo
Anno di costruzione
2025

Caratteristiche

Parcheggio
Ascensore
Internet
Accessibile ai disabili

Agenzia

Datomar Spörri-Treuhand AG
Indirizzo:Rotkreuz, Holzhäusernstrasse, 6343
Ref: G 2.3
Online da
20/10/2025
12 ore fa

Località

Tägerhardstrasse 99, 5430 Wettingen

Fonti