Spazio ufficio in affitto - Leutschenbachstrasse 95, 8050 Zürich
Perché amerai questa proprietà
Spazi luminosi e attrezzati
Aree di networking disponibili
Posti auto con ricarica E
Organizza una visita
Prenota una visita con Melina oggi!
Il tuo ufficio in Z.ONE
Questo è ciò che ti offre Z.ONE
<> Spazi per uffici attraenti, luminosi e ben attrezzati in un ambiente dinamico. <> Spazio per scambi. Ad esempio, nella hall, al bar caffè o nell'ampio spazio esterno. <> Servizio postale e pacchi, assistenza all'infanzia, ristorante, doccia e spogliatoi, oltre a posti auto con stazioni di ricarica elettrica completano l'offerta.
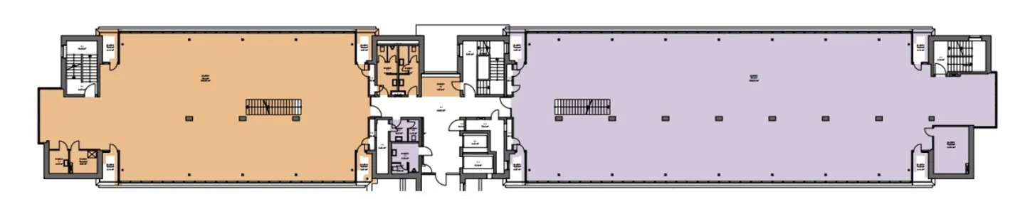
Questo include il tuo spazio ufficio:
* Circa 1575 m² di superficie sui due ultimi piani * Spazio per creatività, in...
Ripartizione dei costi
- Affitto netto
- CHF 39’350
- Costi aggiuntivi
- CHF 40
- Totale delle locazioni
- CHF 39’350
Dettagli immobile
- Disponibile dal
- Su accordo
- Anno di costruzione
- 1995
- Anno di ristrutturazione
- 2019
- Superficie abitabile
- 1574 m²
- Superficie utilizzabile
- 1574 m²



