Commerciale in affitto - Ostermundigenstrasse 93, 3006 Bern
Perché amerai questa proprietà
Opzioni di layout flessibili
Accesso logistico efficiente
Iconico monumento architettonico
Organizza una visita
Prenota una visita con Michèle oggi!
Hochhuus: qui si crea spazio per il successo
In Ostermundigenstrasse 93, all'ingresso est di Berna, vi aspetta un'area commerciale/vendita con ottima accessibilità. L'autobus si ferma direttamente davanti all'edificio, la stazione di Ostermundigen è raggiungibile in pochi minuti a piedi e anche l'autostrada è molto vicina. Questo consente a dipendenti, clienti e partner di raggiungere comodamente la vostra sede in qualsiasi momento.
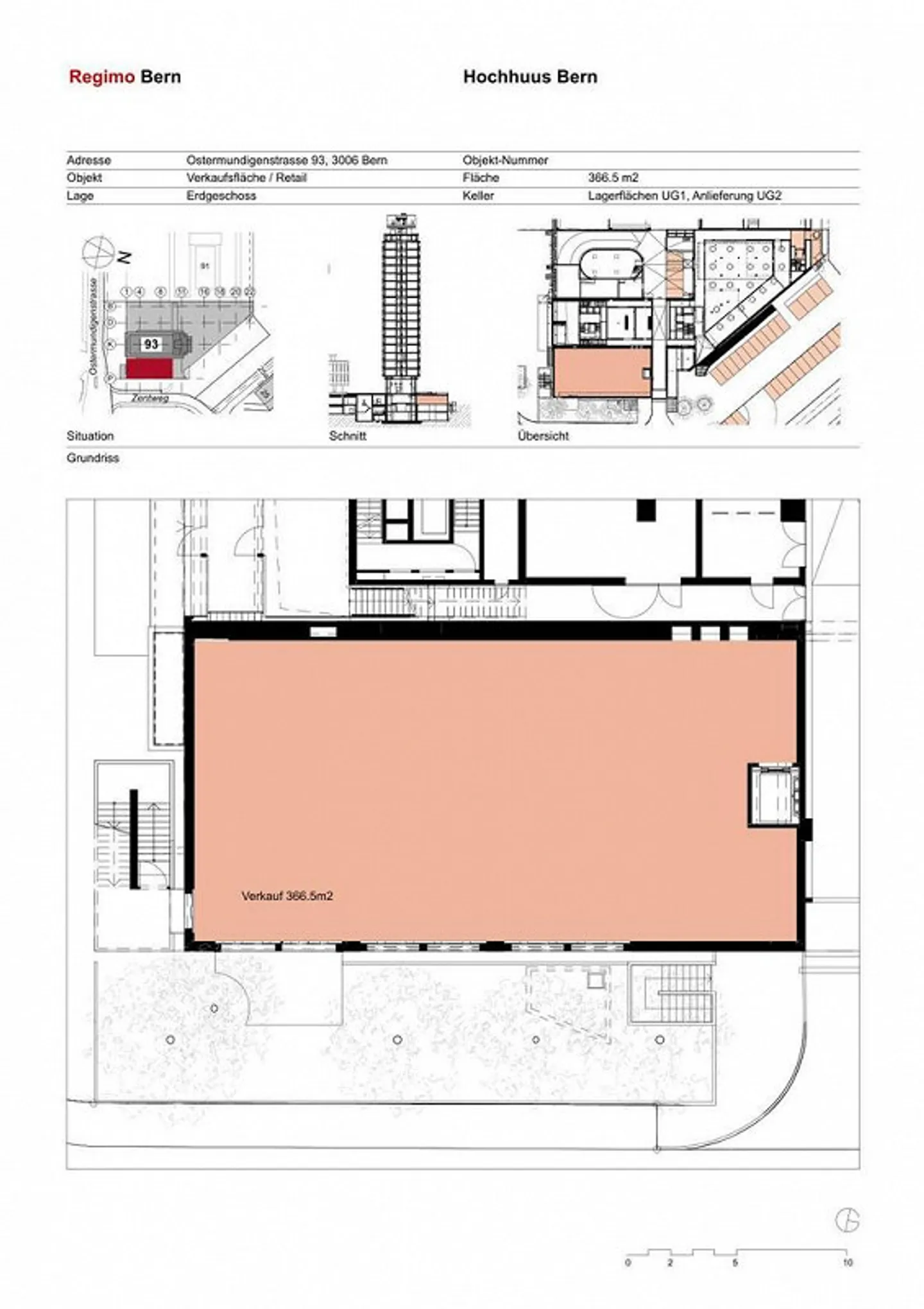
Al piano terra dell'Hochhuus vi aspettano circa 366 m2 di superficie commerciale in stato grezzo. Questa può ...
Dettagli immobile
- Disponibile dal
- Su accordo



