Spazio ufficio in affitto - Ostermundigenstrasse 93, 3006 Bern
Perché amerai questa proprietà
Layout uffici flessibili
Cucina completamente attrezzata
Ottimo accesso ai trasporti pubblici
Organizza una visita
Prenota una visita con Michèle oggi!
Spazi per uffici nell'hochhuus: arrivo, allestimento, decollo
In Ostermundigenstrasse 93, all'ingresso est di Berna, vi aspetta un ufficio con un'ottima accessibilità. L'autobus si ferma direttamente davanti all'edificio, la stazione di Ostermundigen è raggiungibile a piedi in pochi minuti e anche l'autostrada è nelle vicinanze. In questo modo, dipendenti, clienti e partner possono raggiungere comodamente la vostra sede in qualsiasi momento.
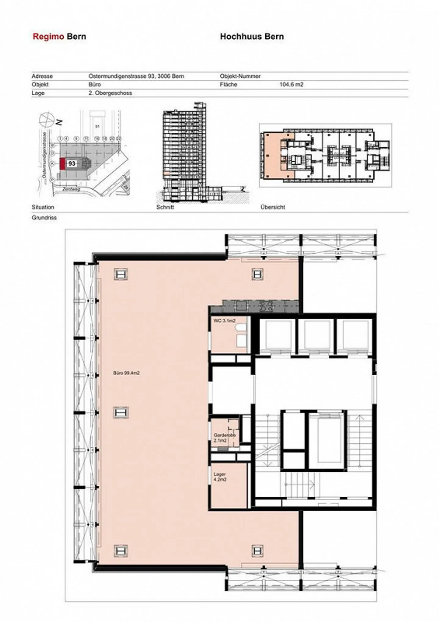
Al 2° piano vi aspetta un ufficio moderno, che può essere adattato in modo flessibile alle vostre esigenze. La strutt...
Dettagli immobile
- Disponibile dal
- Su accordo



