Spazio ufficio in affitto - Ziegeleihof 9, 6280 Hochdorf
Perché amerai questa proprietà
Internet in fibra ad alta velocità
Stanze luminose con grandi finestre
Opzioni di affitto flessibili disponibili
Organizza una visita
Prenota una visita con Werder oggi!
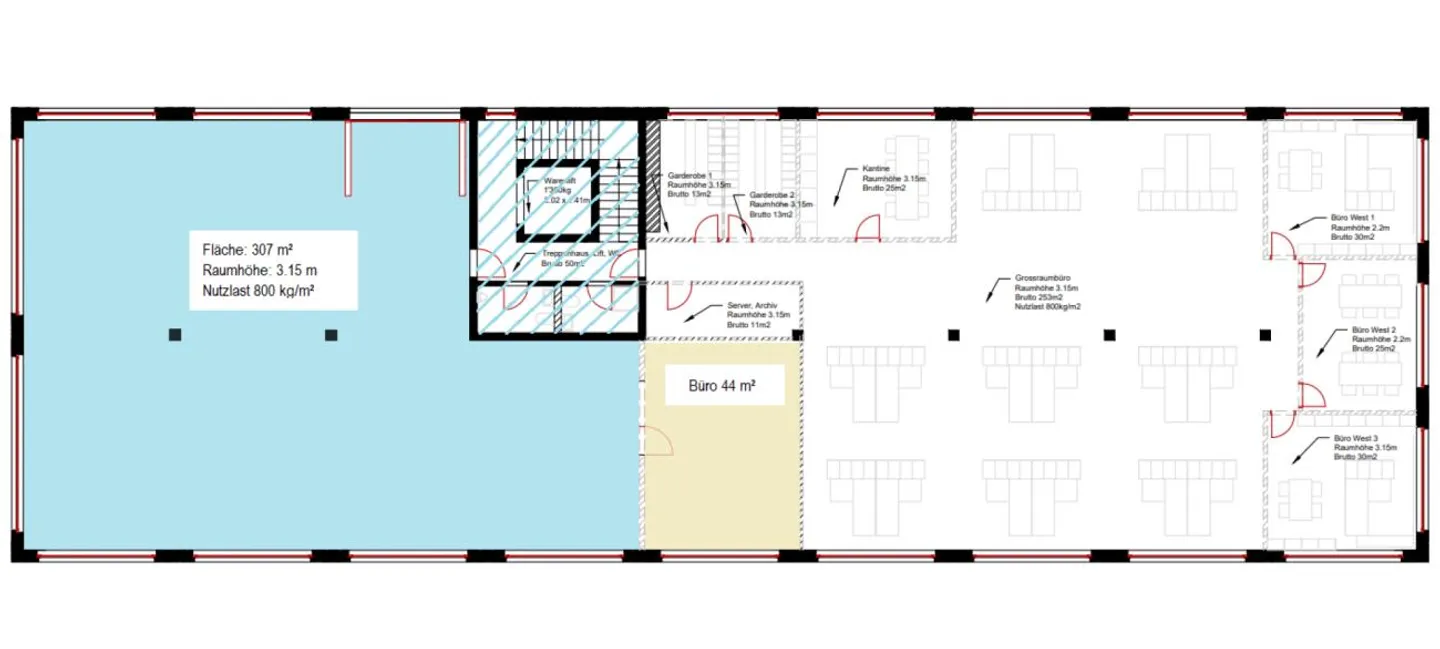
Spazio commerciale/ufficio attraente (nuova costruzione) su una strada principale trafficata - ...
Spazio commerciale di alta qualità (nuova costruzione) in una posizione privilegiata
Posizione
Hochdorf è il centro economico del bellissimo e pittoresco Seetal. Una volta un villaggio, è rapidamente cresciuto in una piccola città in espansione. Fino ad ora, il comune è ancora relativamente sconosciuto e quindi significativamente più economico di Zug, Zurigo, Basilea o la città di Lucerna. Il cantone di Lucerna ha creato molti privilegi fiscali attraenti per le aziende negli ultimi anni.
Collegamen...
Dettagli immobile
- Disponibile dal
- Su accordo




