Spazio ufficio in affitto - Rue Saint-Martin 9, 1003 Lausanne
Perché amerai questa proprietà
Opzioni di layout flessibili
Ottimo accesso ai trasporti
Vetrine ad alta visibilità
Organizza una visita
Prenota una visita con NZITA oggi!
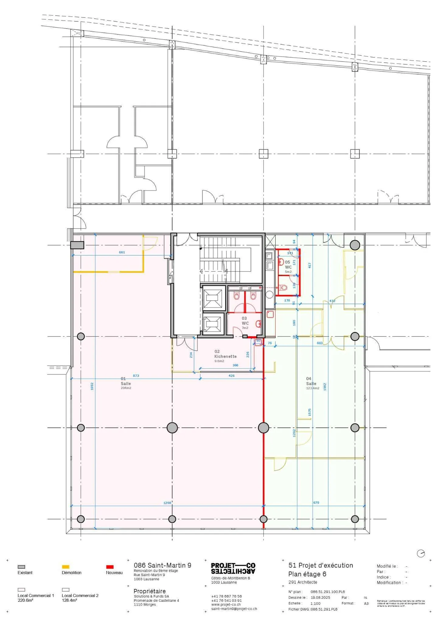
Spazi commerciali moderni e completamente ristrutturati di 129 m² e 230 m²
Stai cercando uno spazio contemporaneo, funzionale e pronto per la tua attività?
Scopri questi due fantastici spazi commerciali appena ristrutturati, che sono emersi dalla suddivisione di un piano di 366 m². Personalizzabili per qualsiasi tipo di progetto - uffici, negozi, showroom o studi specializzati - questi spazi combinano visibilità, comfort e flessibilità.
Superficie di 129 m²
- Un bagno moderno e funzionale
- Una cucina nuova e attrezzata
- Ristrutturazione completa (pavimenti, pittura, imp...
Dettagli immobile
- Disponibile dal
- 12.11.2025
- Superficie abitabile
- 123 m²
- Superficie utilizzabile
- 123 m²



