Spazio ufficio in affitto - Rue Marignac 9, 1206 Genève
Perché amerai questa proprietà
Posizione privilegiata
4 uffici indipendenti
Sala conferenze disponibile
Organizza una visita
Prenota una visita con maison.work oggi!
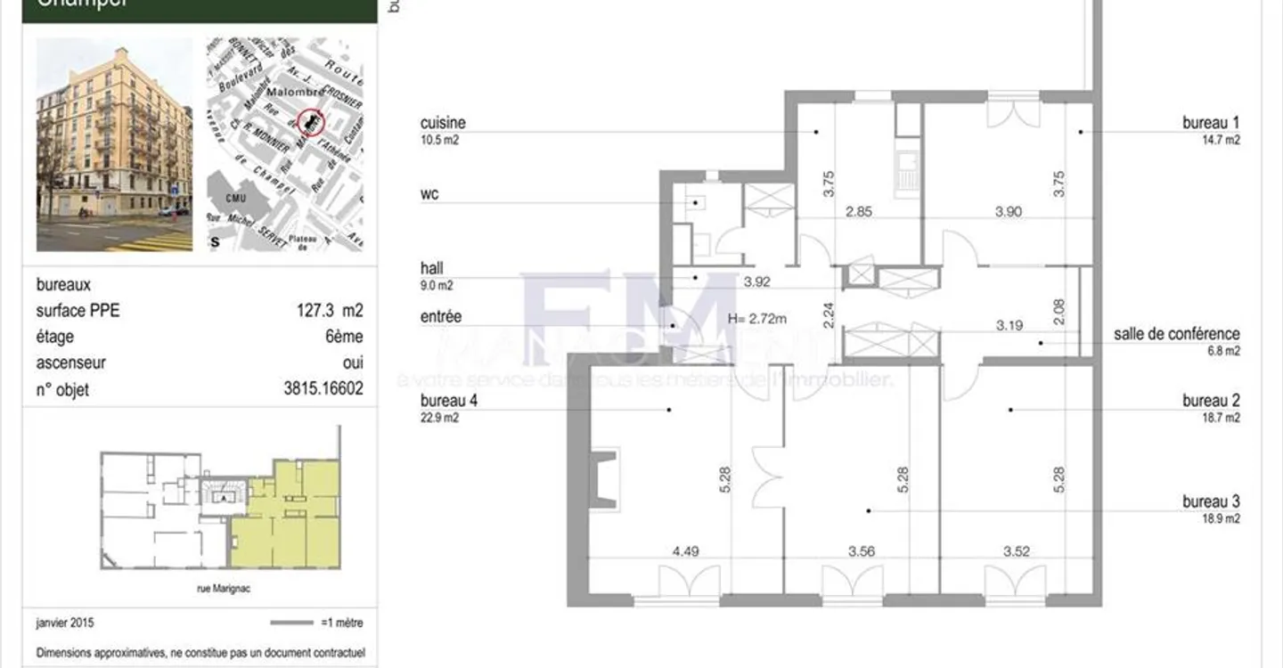
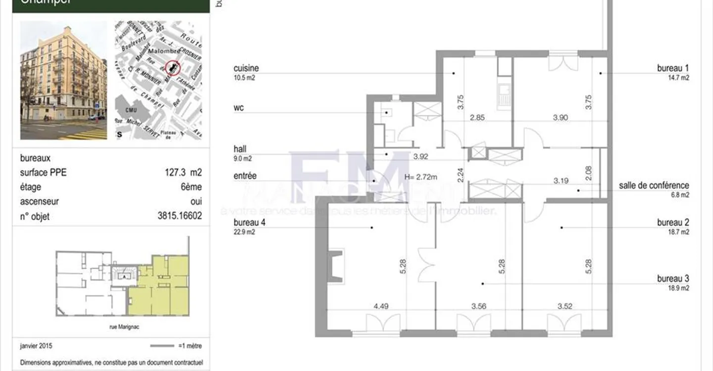
Champel, rue Marignac, ufficio di 110m2 al 6° piano
In una posizione privilegiata nel cuore del quartiere di Champel, all'angolo tra rue de l'Athénée e rue Marignac, bellissimi uffici di 110 m2.
Sono composti da un ingresso, 4 uffici indipendenti, una sala conferenze, una cucina e un WC.
Affitto mensile Fr. 5'000. - ovvero Fr 545. - / m2/anno (+ spese Fr. 180. -/mese)
In affitto non arredato.
Per qualsiasi richiesta di visita, vi preghiamo di contattare il servizio affitti per concordare un a...
Ripartizione dei costi
- Affitto netto
- CHF 5’100
- Costi aggiuntivi
- CHF 100
- Totale delle locazioni
- CHF 5’100
Dettagli immobile
- Disponibile dal
- Su accordo



